Spécialiste de Toulouse, LOCO² est une société de conseil en immobilier d'entreprise qui accompagne ses clients à l'achat ou à la location, qu'ils soient propriétaires, investisseurs ou utilisateur ...
En savoir plus

390 m²
HT HC
Location local commercial - 390 m²
Dernière mise à jour : Il y a 2 jours
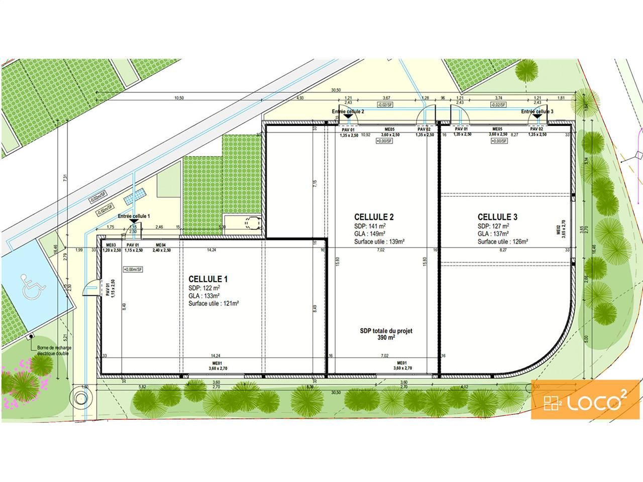
Local commercial Fronton 390 m2 Au Nord de TOULOUSE sur la commune de FRONTON, LOCO² vous propose à la location un bâtiment commercial indépendant à construire développant 390 m² sur une parcelle de 1 605 m².
29 places de parking extérieures
Livraison : Septembre 2026
Tableau des surfaces:
29 places de parking extérieures
Livraison : Septembre 2026
Tableau des surfaces:
| Niveau | Nom | Surface | Commentaires | Loyer | Prix |
| RDC | Local commercial | 390 m² | Dispo : Sept 2026 | 75000 € HT-HC/an | |
Voir plus
Afficher les consommations énergétiques
Localisation et transport aux alentours
Favoris
Exporter
Appeler
Contacter
Signaler cette annonce




