Arthur Loyd Grenoble est une agence spécialisée en immobilier d’entreprise, dirigée par Guillaume Woutaz et Matthieu Demeure, qui ont repris l'agence en 2025.Fêtant récemment son 30ème anniversaire ...
En savoir plus

274 m²
HT HC
CITYZEN - Location local commercial - 274 m²
Échirolles (38130)
Dernière mise à jour : Il y a 2 jours
LOCAL COMMERCIAL 273m² A LOUER ECHIROLLES PIED TRAM AXE PASSANT 2026
Immeuble CITYZEN
Au coeur de la commune d'Echirolles, à l'angle de l'avenue du 8 mai 1945 et du Boulevard Grugliasco, au pied du Tram , nous vous proposons un local commercial de 273 m² A LOUER en pied d'immeuble d'un programme neuf.
Sa proximité avec de nombreux services (santé, services publics, restauration, loisirs), en fait un emplacement de choix. Il est situé en face de la Rampe.
Accès direct à la rocade sud et desservis par plusieurs transports en commun.
Nombreux parkings à proximité
LIVRAISON 2026
Régime Fiscal : T.V.A.
Dépôt de garantie : 3 mois de loyer HT/HC
Honoraires : A la charge du preneur, 15% HT du loyer annuel HT (hors négociation : franchise, sur loyer, etc)
Prestations :
Accessibilité:
Tram Tram A - Arrêt « La Rampe / Centre Ville »
Bus Bus 66, 68, C7 - Arrêt « La Rampe / Centre Ville »
SNCF A proximité de la gare d'Echirolles
Route A proximité immédiate rocade sud (sortie 7)
Les informations sur les risques auxquels ce bien est exposé sont disponibles sur le site Géorisques : www.georisques.gouv.fr
Immeuble CITYZEN
Au coeur de la commune d'Echirolles, à l'angle de l'avenue du 8 mai 1945 et du Boulevard Grugliasco, au pied du Tram , nous vous proposons un local commercial de 273 m² A LOUER en pied d'immeuble d'un programme neuf.
Sa proximité avec de nombreux services (santé, services publics, restauration, loisirs), en fait un emplacement de choix. Il est situé en face de la Rampe.
Accès direct à la rocade sud et desservis par plusieurs transports en commun.
Nombreux parkings à proximité
LIVRAISON 2026
| Étage | Type | Surfaces | Dispo | Loyer | Charges | Type de bailRév. annuelle |
|---|---|---|---|---|---|---|
| RDC | Locaux Commerciaux | 273,7 | 160 HT/HC/m²/an | Bail commercial 3-6-9 ansILC Indice des Locaux Commerciaux |
Régime Fiscal : T.V.A.
Dépôt de garantie : 3 mois de loyer HT/HC
Honoraires : A la charge du preneur, 15% HT du loyer annuel HT (hors négociation : franchise, sur loyer, etc)
Prestations :
- ERP : 5ème catégorie
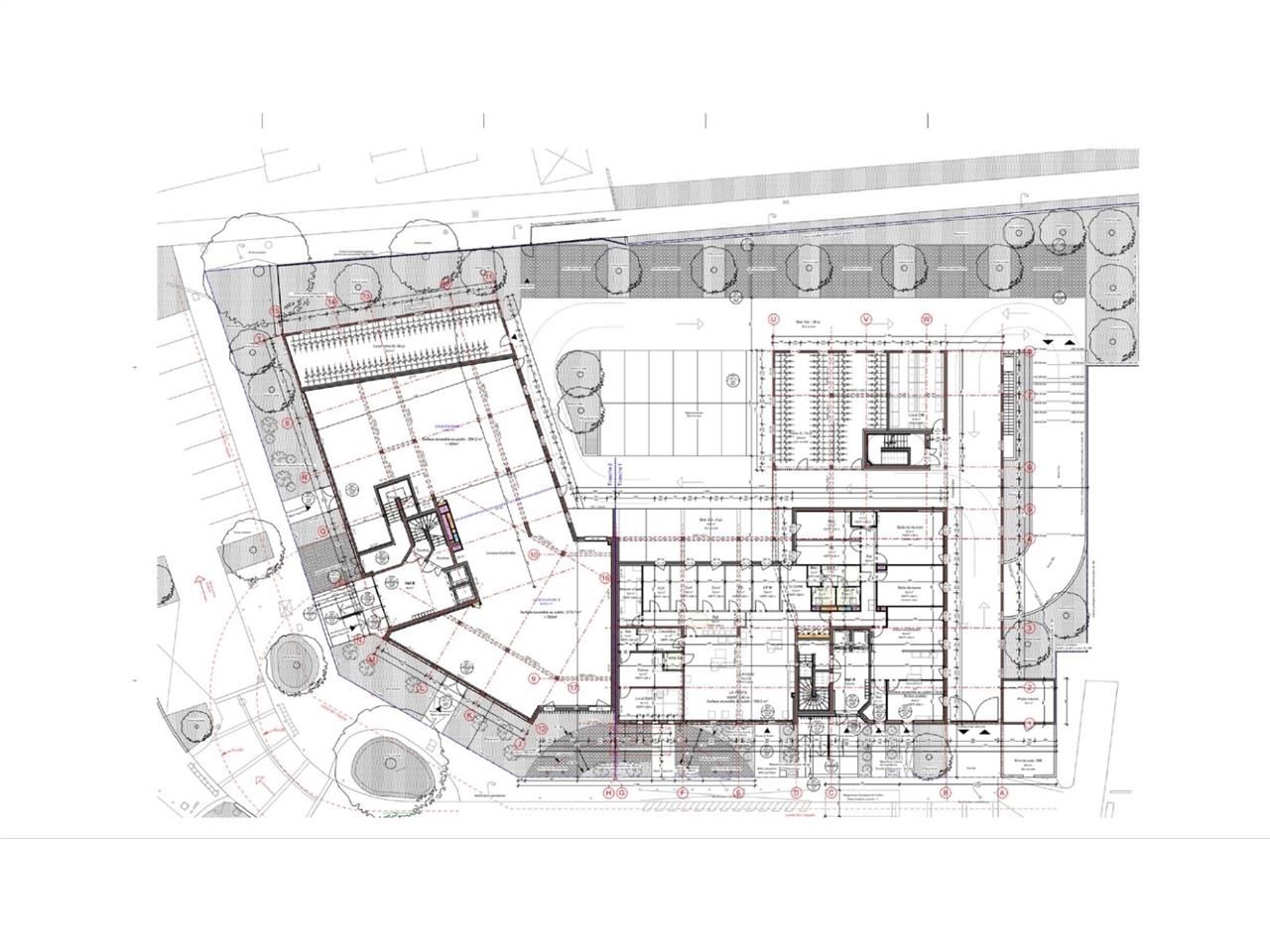
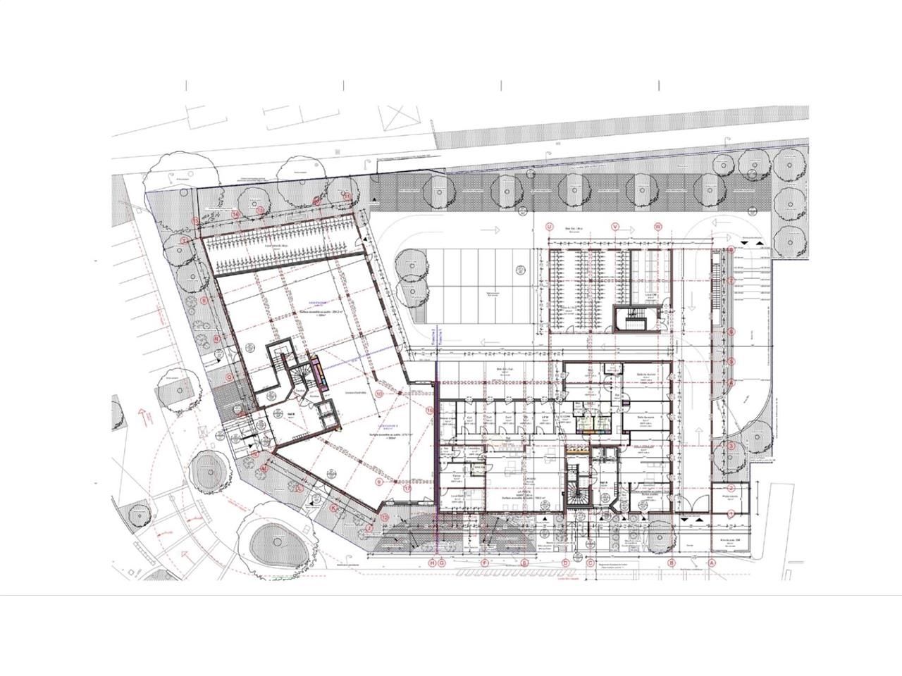
- LOCAL COMMERCIAL DE 273 m²
- Livré brut de béton, fluides en attente et vitrines principales à poser.
- L'environnement offre de nombreux services accessibles à pied:
- Restauration (3 Brasseurs, Crêperie, Hippopotamus, etc.)
- Services publiques/ santé (établissements scolaires, poste, clinique)
- Loisirs (Pathé cinéma, bowling, Laser Game, piscine, etc.)
- > 19 places publiques disponibles devant les bâtiments, de nombreuses autres sont à proximité.
- Avec la poste comme local commercial mitoyen et un arrêt de Tram en face du boulevard Grugliasco, il bénéficiera des flux générés naturellement par ces deux services.
- Surface RDC : 273 m²
Accessibilité:
Tram Tram A - Arrêt « La Rampe / Centre Ville »
Bus Bus 66, 68, C7 - Arrêt « La Rampe / Centre Ville »
SNCF A proximité de la gare d'Echirolles
Route A proximité immédiate rocade sud (sortie 7)
Les informations sur les risques auxquels ce bien est exposé sont disponibles sur le site Géorisques : www.georisques.gouv.fr
Voir plus
Afficher les consommations énergétiques
Localisation et transport aux alentours
- La Rampe Centre Ville225m (3min à pied)A
- Échirolles Gare306m (5min à pied)A
- Marie Curie553m (8min à pied)A
Favoris
Exporter
Appeler
Contacter
Signaler cette annonce






