MCarré Conseil est une agence spécialiste de l'immobilier d’entreprise du sud de l’Île-de-France (en Essonne et dans le sud de la Seine-et-Marne et du Val-De-Marne). Elle vous accompagne à chaque é ...
En savoir plus

988 m²
HT HC
Location local commercial - 988 m²
Corbeil-Essonnes (91100)
Dernière mise à jour : Il y a 2 jours
Excellente visibilité commerciale !
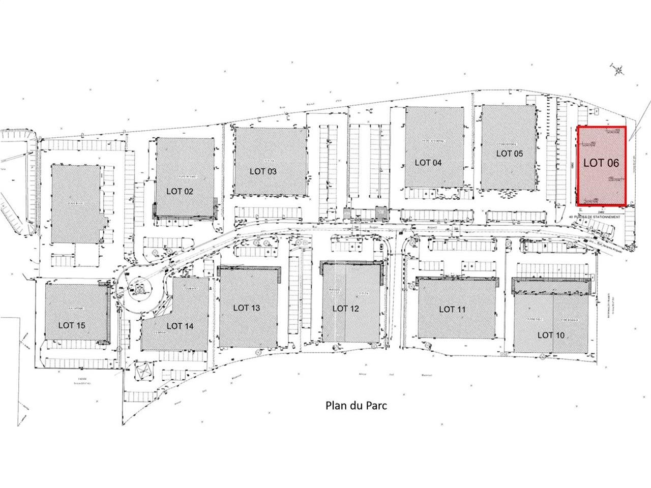
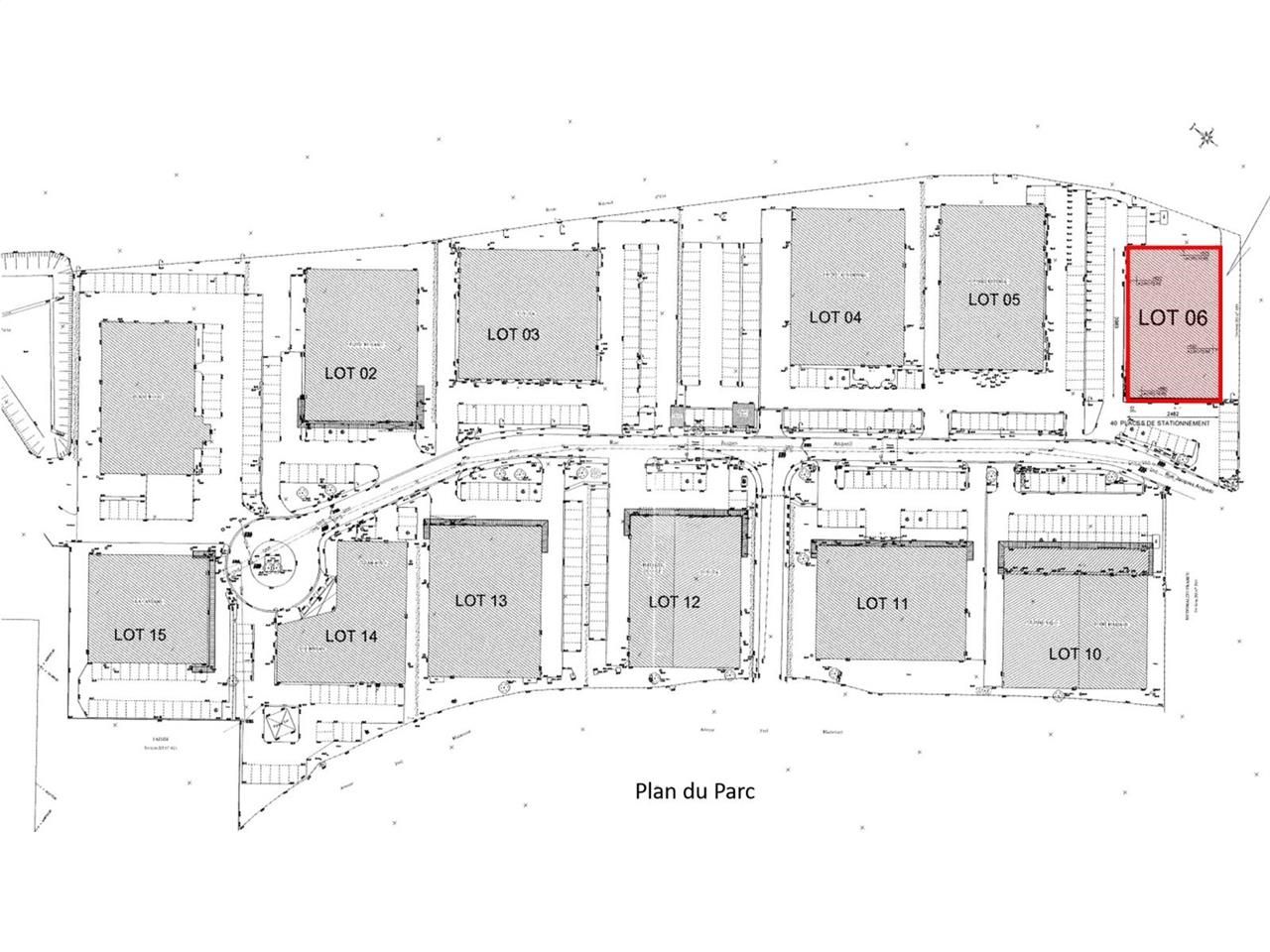
Au sein du Parc commercial des Coquibus, à la croisée des nationales N7 et N104 (Francilienne), nous vous proposons un bâtiment indépendant à usage commercial d'une surface de 988 m² sur un foncier de 2 596 m².
Impôt Foncier : 22600 €/HT/an
Régime Fiscal : TVA
Dépôt de garantie : 3 mois de loyer HT/HC
Honoraires : 30% HT du loyer annuel HT/HC
Information sur le Bail :
Loyer annuel : 120 000 euros HT/HC Honoraires de Gestion Immo / Gestion technique : 0.95 euros/m² pour l'ensemble immobilier Prévoir TLC et TEOM
Prestations :
Accessibilité:
Autoroute Autoroute A6
Route Nationale 104 Francilienne
Route Nationale 7
RER RER D4 : Le Bras de Fer
Bus Lycée Doisneau (BUS-224), Tarterêts (BUS-402, BUS-N135, BUS-N144), Lycée (BUS-301, BUS-405)
Les informations sur les risques auxquels ce bien est exposé sont disponibles sur le site Géorisques : www.georisques.gouv.fr
Au sein du Parc commercial des Coquibus, à la croisée des nationales N7 et N104 (Francilienne), nous vous proposons un bâtiment indépendant à usage commercial d'une surface de 988 m² sur un foncier de 2 596 m².
| Étage | Type | Surfaces | Dispo | Loyer | Charges | Type de bailRév. annuelle |
|---|---|---|---|---|---|---|
| Rdc | Locaux Commerciaux | 988 | Immédiate | 121,46 m²/an HT HC | 15,69 HT/m²/an | 3/6/9 ansAnnuelle selon ILC |
| Parkings | Annuelle selon ILC |
Impôt Foncier : 22600 €/HT/an
Régime Fiscal : TVA
Dépôt de garantie : 3 mois de loyer HT/HC
Honoraires : 30% HT du loyer annuel HT/HC
Information sur le Bail :
Loyer annuel : 120 000 euros HT/HC Honoraires de Gestion Immo / Gestion technique : 0.95 euros/m² pour l'ensemble immobilier Prévoir TLC et TEOM
Prestations :
- Linéaire de vitrine
- Excellente accessibilité (Francilienne N104 à proximité immédiate)
- Bonne visibilité commerciale : 100 000 véhicules/jour
- À deux pas de nombreuses enseignes de loisirs et automobiles (Skoda, Suzuki/Toyota, Mac Donald's, Pacific Pêche, Golf Land, Pacific Pêche...)
- Immeuble indépendant
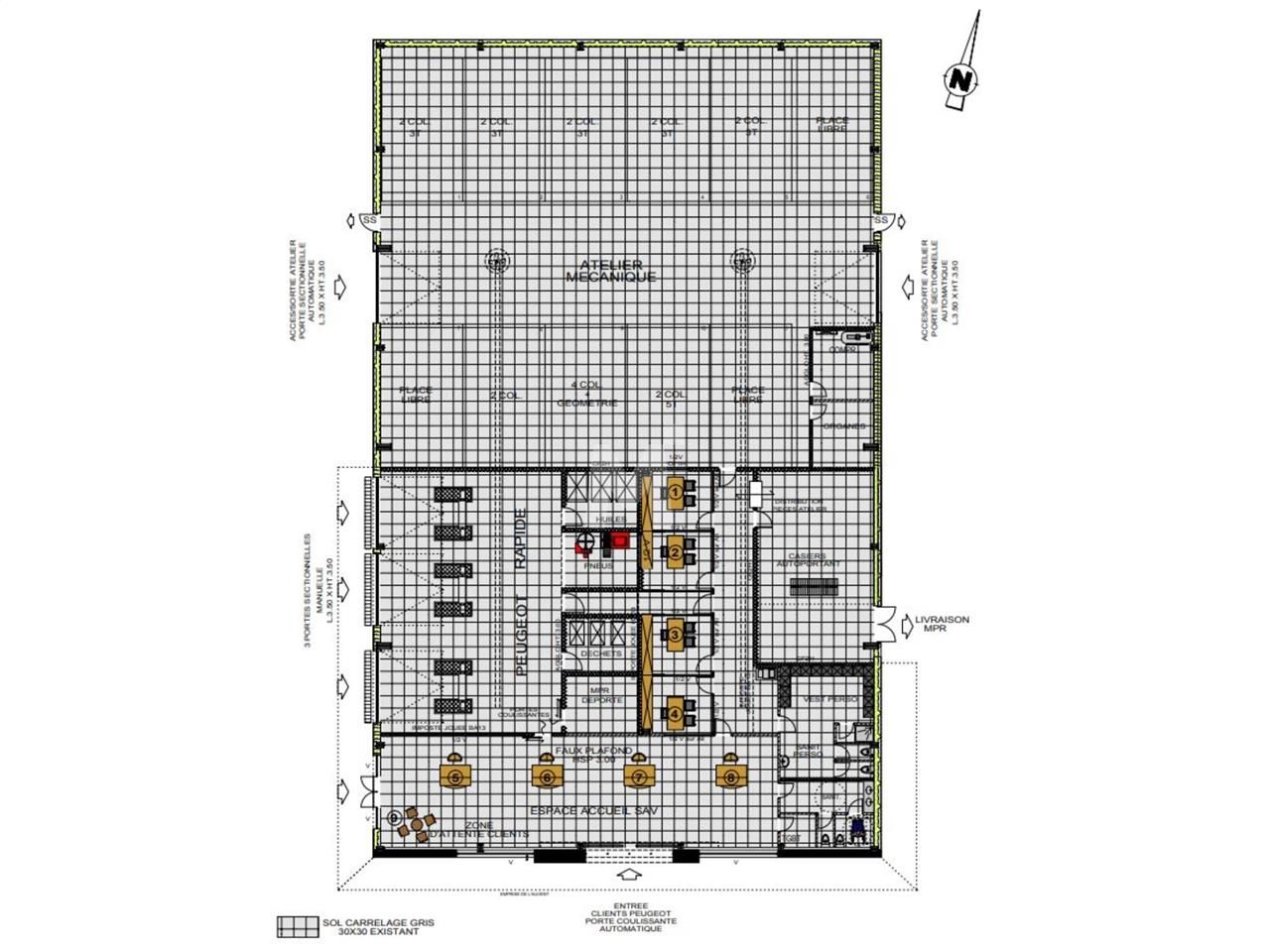
- Surface RDC : 988 m²
Accessibilité:
Autoroute Autoroute A6
Route Nationale 104 Francilienne
Route Nationale 7
RER RER D4 : Le Bras de Fer
Bus Lycée Doisneau (BUS-224), Tarterêts (BUS-402, BUS-N135, BUS-N144), Lycée (BUS-301, BUS-405)
Les informations sur les risques auxquels ce bien est exposé sont disponibles sur le site Géorisques : www.georisques.gouv.fr
Emplacement(s) de Parking: 40 extérieur(s)
Voir plus
Afficher les consommations énergétiques
Localisation et transport aux alentours
Favoris
Exporter
Appeler
Contacter
Signaler cette annonce


