Conseil en immobilier d'entreprise, Cushman & Wakefield est un acteur incontournable au rayonnement international. Cushman & Wakefield offre des solutions dans toutes les étapes que comporte un p ...
En savoir plus



3 291 m²
Activité/Entrepôt à vendre - 3291 m²
Villebon-sur-Yvette (91140)
Dernière mise à jour : Il y a 2 jours
IMMEUBLE INDEPENDANT
Opportunité rare à saisir dans la zone de Courtaboeuf à Villebon-sur-Yvette : un immeuble indépendant à usage d'activité et de stockage, avec bureaux d'accompagnement, disponible à la vente. L'immeuble sera livré en l'état futur d'achèvement, avec un délai de livraison de 9 mois après accord, le permis de construire étant déjà obtenu et purgé de tout recours. Ce bien vous offre une grande flexibilité pour y installer vos activités professionnelles.
Vous aurez la possibilité d'aménager l'immeuble pour des activités en froid positif ou négatif, ce qui est particulièrement adapté pour les secteurs industriels ou alimentaires.
Ce bien bénéficie d'une accessibilité optimale au coeur de l'une des zones d'activité les plus dynamiques de l'Essonne, offrant un cadre fonctionnel pour développer vos projets.
Pour obtenir plus d'informations ou organiser une visite, n'hésitez pas à nous contacter.
Régime Fiscal : T.V.A.
Honoraires : 5 % HT du prix de vente HD à la charge de l'acquéreur
Prestations :
Accessibilité:
Accès routier A10, N118, N104, A6, N20
RER Massy-Palaiseau (B et C) à 6 min
SNCF Massy-Palaiseau (TGV) à 6 min
Bus La Brûlerie (17, DM11A, DM11C, DM11E, DM11G)
Aéroport Orly à 20 min
Les informations sur les risques auxquels ce bien est exposé sont disponibles sur le site Géorisques : www.georisques.gouv.fr
Opportunité rare à saisir dans la zone de Courtaboeuf à Villebon-sur-Yvette : un immeuble indépendant à usage d'activité et de stockage, avec bureaux d'accompagnement, disponible à la vente. L'immeuble sera livré en l'état futur d'achèvement, avec un délai de livraison de 9 mois après accord, le permis de construire étant déjà obtenu et purgé de tout recours. Ce bien vous offre une grande flexibilité pour y installer vos activités professionnelles.
Vous aurez la possibilité d'aménager l'immeuble pour des activités en froid positif ou négatif, ce qui est particulièrement adapté pour les secteurs industriels ou alimentaires.
Ce bien bénéficie d'une accessibilité optimale au coeur de l'une des zones d'activité les plus dynamiques de l'Essonne, offrant un cadre fonctionnel pour développer vos projets.
Pour obtenir plus d'informations ou organiser une visite, n'hésitez pas à nous contacter.
| Étage | Type | Surfaces | Dispo | Prix(m²) | Charges | Honoraires | Fiscal |
|---|---|---|---|---|---|---|---|
| 1 | Bureaux | 247 | 9 mois après accord | n.c. | n.c. | 5 % HT du prix de vente HD à la charge de l'acquéreur | T.V.A. |
| RdC | Activités | 2986 | 9 mois après accord | n.c. | n.c. | 5 % HT du prix de vente HD à la charge de l'acquéreur | T.V.A. |
| RdC | Bureaux | 58 | 9 mois après accord | n.c. | n.c. | 5 % HT du prix de vente HD à la charge de l'acquéreur | T.V.A. |
| Parkings | n.c. | n.c. | 5 % HT du prix de vente HD à la charge de l'acquéreur | T.V.A. |
Régime Fiscal : T.V.A.
Honoraires : 5 % HT du prix de vente HD à la charge de l'acquéreur
Prestations :
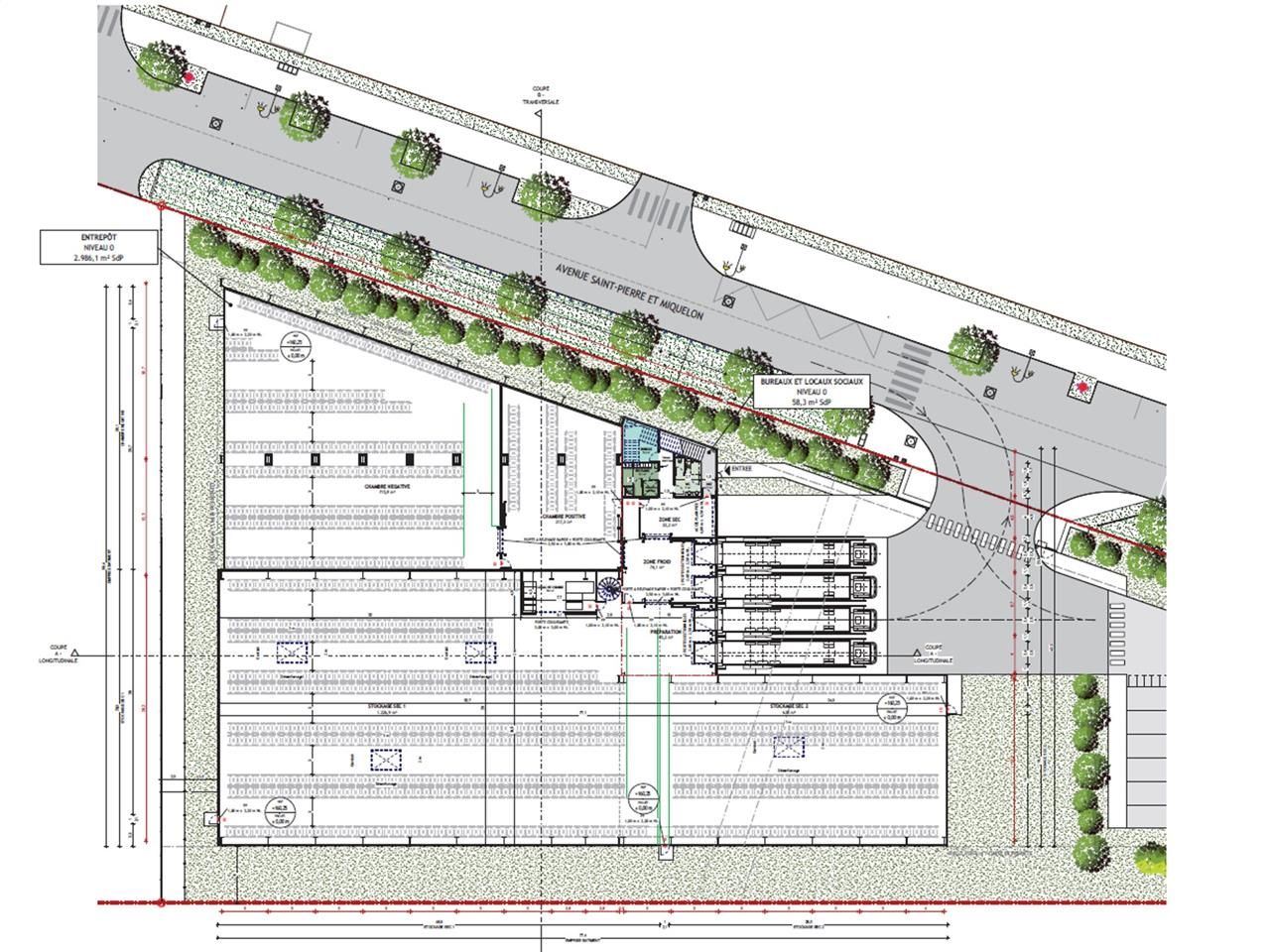
- Sur une parcelle de 7 735 m², projet de construction en VEFA d'un immeuble indépendant à usage d'activité avec bureaux d'accompagnement
- Permis de construire obtenu et purgé de tout recours
- Immeuble indépendant neuf à construire
- 4 portes à quai (2,40x2,50m)
- 1 porte de plain-pied (4x4,50m)
- 4 pistes pour les VL
- Bureaux et locaux sociaux d'accompagnement
- 6 emplacements vélos
- Immeuble indépendant
- Surface RDC : 2986 m²
Accessibilité:
Accès routier A10, N118, N104, A6, N20
RER Massy-Palaiseau (B et C) à 6 min
SNCF Massy-Palaiseau (TGV) à 6 min
Bus La Brûlerie (17, DM11A, DM11C, DM11E, DM11G)
Aéroport Orly à 20 min
Les informations sur les risques auxquels ce bien est exposé sont disponibles sur le site Géorisques : www.georisques.gouv.fr
14 Parking(s) extérieur(s)
Voir plus
Afficher les consommations énergétiques
Localisation et transport aux alentours
Favoris
Exporter
Appeler
Contacter
Signaler cette annonce









