BNP Paribas Real Estate, N°1 de la transaction en immobilier d''entreprise en France, vous propose un accompagnement de qualité pour l''acquisition, la vente ou la location d''un bien immobilier.Vo ...
En savoir plus



22 267 m²
HT HC
Location activité/entrepôt - 22267 m²
Saint-Sorlin-en-Bugey (01150)
Dernière mise à jour : Il y a 2 jours
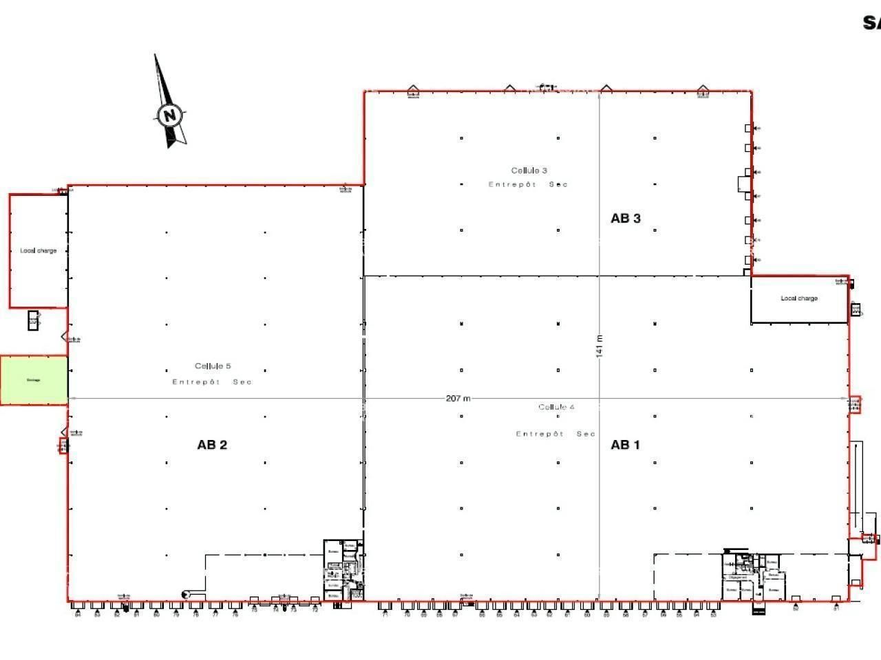
SAINT-SORLIN-EN-BUGEY (01) ENTREPOT LOGISTIQUE - A LOUER Nous vous proposons à la location un entrepôt logistique d'une surface totale d'environ 22 267 m² dont 21 354 m² de stockage et 913 m² de bureaux. Disponible immédiatement. ICPE : 1510(E), 1185.2.a(DC), 1511(DC), 4801.2(D), 1532(D), 2714.2(D), 2925(D)
Nous vous proposons à la location un entrepôt logistique d'une surface totale d'environ 22 267 m² dont 21 354 m² de stockage et 913 m² de bureaux. Disponible immédiatement.
ICPE : 1510(E), 1185.2.a(DC), 1511(DC), 4801.2(D), 1532(D), 2714.2(D), 2925(D)
Honoraires: Nous consulter. à la signature du bail
| Fiche technique du bien | |
|---|---|
| Desserte routière | A432 28 km |
| Desserte routière | A42 14 km |
| Desserte routière | D1075 2 km |
| Aéroport | Lyon Saint Exupery 45 km |
| Gare | TGV Lyon St.Exupery |
| Autorisation d'exploiter | 2714.2 |
| Autorisation d'exploiter | 1185.2.a |
| Autorisation d'exploiter | 2925 |
| Autorisation d'exploiter | 1532 |
| Autorisation d'exploiter | Oui |
| Autorisation d'exploiter | 1511 |
| Autorisation d'exploiter | 1510 |
| Etat de l'immeuble | Seconde main |
| Autre élément bureau | Bureaux climatisés |
| Hauteur libre | 10,00 mètre(s) et 7,50 mètres sous quais |
| Porte(s) d'accès à quai | 34 niveleurs (16 quais en 10 tonnes) |
| Eclairage intérieur | LED |
| Sprinklers | Oui |
Afficher les consommations énergétiques
Favoris
Exporter
Appeler
Contacter
Signaler cette annonce


