Conseil en immobilier d'entreprise, Cushman & Wakefield est un acteur incontournable au rayonnement international. Cushman & Wakefield offre des solutions dans toutes les étapes que comporte un p ...
En savoir plus



60 779 m² divisible dès 6 000 m²
HT HC
Location activité/entrepôt - 60779 m²
Gretz-Armainvilliers (77220)
Dernière mise à jour : Il y a 22 jours
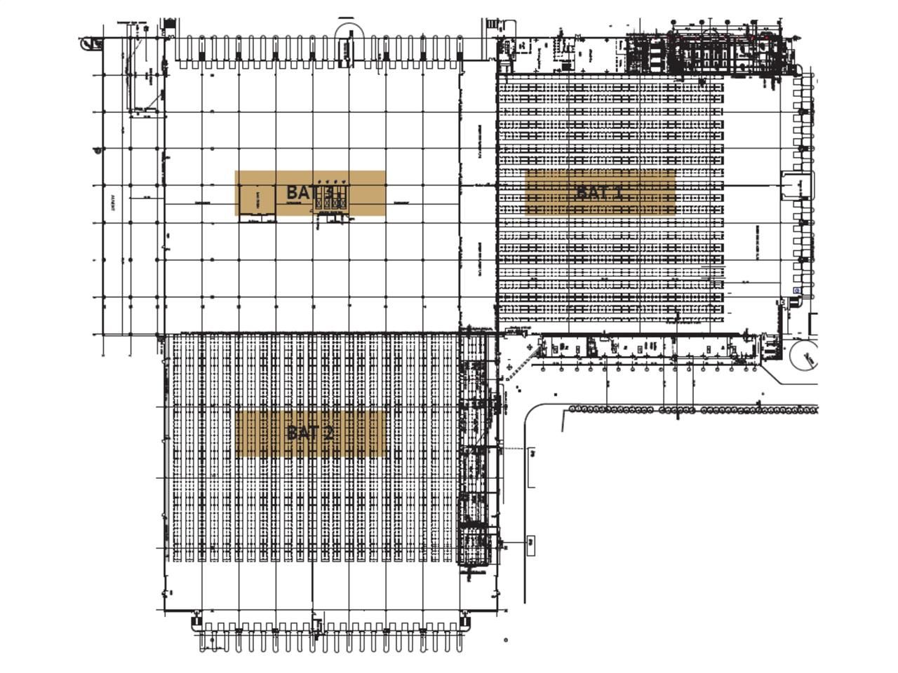
Bâtiment logistique XXL
Nous vous proposons à la location un entrepôt logistique de classe A idéalement situé à Gretz-Armainvilliers, un emplacement de choix pour les activités de logistique et de grande distribution. Cet entrepôt à louer bénéficie d'un accès privilégié à la N4, au RER E, ainsi qu'aux lignes de bus 3, 11 et 21, facilitant les connexions pour vos équipes et le transport de marchandises.
Ce vaste entrepôt logistique offre une surface totale de 60 000 m², divisible dès 11 800 m², permettant une flexibilité d'aménagement selon les besoins de votre activité. Conçu pour la performance, cet entrepôt à louer dispose d'une hauteur libre de 14 mètres et d'une résistance au sol de 5 T/m², répondant aux standards les plus exigeants pour la logistique moderne. Il est doté de 60 quais de chargement et d'une cour de manoeuvre pour camions de 35 mètres, offrant une fluidité optimale pour le chargement et le déchargement.
Parfaitement conforme aux réglementations, cet entrepôt possède les autorisations ICPE 1510-1, ainsi que des enregistrements et déclarations pour les codes 1530-2, 2662, 2663, 1532-1, 2925 et 4510, en plus d'une déclaration contrôlée pour le code 4331.3. Les activités non classées couvrent également les codes ICPE 2920, 4320, 4321 et 4511, garantissant la sécurité de votre exploitation.
Grâce à ses spécifications techniques avancées et son emplacement stratégique, ce site de logistique en location est parfaitement adapté aux entreprises cherchant un entrepôt à louer pour soutenir une distribution rapide et efficace. Profitez de cet espace optimisé pour développer votre chaîne de logistique dans un environnement flexible et conforme aux normes.
Impôt Foncier : 8,35 €//m²/an
Régime Fiscal : T.V.A.
Dépôt de garantie : 3 mois de loyer HT/HC
Paiement Loyer : Trimestriel
Honoraires : Nous consulter
Information sur le Bail :
Charges incluent : maintenance préventive et vérifications complémentaires, fluides, travaux courants, honoraires, assurance propriétaire Taxe bureaux et parking : 1,68 euros/m²/an HT HC Honoraires PM : 0.30 % du loyer annuel
Prestations :
Accessibilité:
RER Gretz-Armainvilliers (RER E)
SNCF Gretz-Armainvilliers
Bus Lignes 3-11-21
Accès routier N4
Les informations sur les risques auxquels ce bien est exposé sont disponibles sur le site Géorisques : www.georisques.gouv.fr
Nous vous proposons à la location un entrepôt logistique de classe A idéalement situé à Gretz-Armainvilliers, un emplacement de choix pour les activités de logistique et de grande distribution. Cet entrepôt à louer bénéficie d'un accès privilégié à la N4, au RER E, ainsi qu'aux lignes de bus 3, 11 et 21, facilitant les connexions pour vos équipes et le transport de marchandises.
Ce vaste entrepôt logistique offre une surface totale de 60 000 m², divisible dès 11 800 m², permettant une flexibilité d'aménagement selon les besoins de votre activité. Conçu pour la performance, cet entrepôt à louer dispose d'une hauteur libre de 14 mètres et d'une résistance au sol de 5 T/m², répondant aux standards les plus exigeants pour la logistique moderne. Il est doté de 60 quais de chargement et d'une cour de manoeuvre pour camions de 35 mètres, offrant une fluidité optimale pour le chargement et le déchargement.
Parfaitement conforme aux réglementations, cet entrepôt possède les autorisations ICPE 1510-1, ainsi que des enregistrements et déclarations pour les codes 1530-2, 2662, 2663, 1532-1, 2925 et 4510, en plus d'une déclaration contrôlée pour le code 4331.3. Les activités non classées couvrent également les codes ICPE 2920, 4320, 4321 et 4511, garantissant la sécurité de votre exploitation.
Grâce à ses spécifications techniques avancées et son emplacement stratégique, ce site de logistique en location est parfaitement adapté aux entreprises cherchant un entrepôt à louer pour soutenir une distribution rapide et efficace. Profitez de cet espace optimisé pour développer votre chaîne de logistique dans un environnement flexible et conforme aux normes.
| Étage | Type | Surfaces | Dispo | Loyer | Charges | Type de bailRév. annuelle |
|---|---|---|---|---|---|---|
| Locaux techniques | 1511 | 50 HT/HC/m²/an | 8,49 HT/m²/an | 9 ans fermesSur l'indice ILAT | ||
| Autres | 260 | 50 HT/HC/m²/an | 8,49 HT/m²/an | 9 ans fermesSur l'indice ILAT | ||
| 1 | Bureaux | 1157 | 50 HT/HC/m²/an | 8,49 HT/m²/an | 9 ans fermesSur l'indice ILAT | |
| 1 | Bureaux | 873 | 50 HT/HC/m²/an | 8,49 HT/m²/an | 9 ans fermesSur l'indice ILAT | |
| RdC | Entrepôts | 6955 | 50 HT/HC/m²/an | 8,49 HT/m²/an | 9 ans fermesSur l'indice ILAT | |
| RdC | Entrepôts | 5344 | 50 HT/HC/m²/an | 8,49 HT/m²/an | 9 ans fermesSur l'indice ILAT | |
| RdC | Locaux sociaux | 1057 | 50 HT/HC/m²/an | 8,49 HT/m²/an | 9 ans fermesSur l'indice ILAT | |
| RdC | Locaux sociaux | 125 | 50 HT/HC/m²/an | 8,49 HT/m²/an | 9 ans fermesSur l'indice ILAT | |
| RdC | Locaux techniques | 8 | 50 HT/HC/m²/an | 8,49 HT/m²/an | 9 ans fermesSur l'indice ILAT | |
| Mezzanine | Bureaux | 477 | 50 HT/HC/m²/an | 8,49 HT/m²/an | 9 ans fermesSur l'indice ILAT | |
| Mezzanine | Locaux sociaux | 84 | 50 HT/HC/m²/an | 8,49 HT/m²/an | 9 ans fermesSur l'indice ILAT | |
| 1 | Bureaux | 812 | 50 HT/HC/m²/an | 8,49 HT/m²/an | 9 ans fermesSur l'indice ILAT | |
| RdC | Entrepôts | 6265 | 50 HT/HC/m²/an | 8,49 HT/m²/an | 9 ans fermesSur l'indice ILAT | |
| RdC | Entrepôts | 6200 | 50 HT/HC/m²/an | 8,49 HT/m²/an | 9 ans fermesSur l'indice ILAT | |
| RdC | Entrepôts | 780 | 50 HT/HC/m²/an | 8,49 HT/m²/an | 9 ans fermesSur l'indice ILAT | |
| RdC | Entrepôts | 681 | 50 HT/HC/m²/an | 8,49 HT/m²/an | 9 ans fermesSur l'indice ILAT | |
| RdC | Autres | 248 | 50 HT/HC/m²/an | 8,49 HT/m²/an | 9 ans fermesSur l'indice ILAT | |
| RdC | Locaux sociaux | 54 | 50 HT/HC/m²/an | 8,49 HT/m²/an | 9 ans fermesSur l'indice ILAT | |
| 1 | Entrepôts | 50 | 50 HT/HC/m²/an | 8,49 HT/m²/an | 9 ans fermesSur l'indice ILAT | |
| RdC | Entrepôts | 11252 | 50 HT/HC/m²/an | 8,49 HT/m²/an | 9 ans fermesSur l'indice ILAT | |
| RdC | Locaux techniques | 356 | 50 HT/HC/m²/an | 8,49 HT/m²/an | 9 ans fermesSur l'indice ILAT | |
| RdC | Autres | 66 | 50 HT/HC/m²/an | 8,49 HT/m²/an | 9 ans fermesSur l'indice ILAT | |
| Mezzanine | Entrepôts | 16164 | 50 HT/HC/m²/an | 8,49 HT/m²/an | 9 ans fermesSur l'indice ILAT |
Impôt Foncier : 8,35 €//m²/an
Régime Fiscal : T.V.A.
Dépôt de garantie : 3 mois de loyer HT/HC
Paiement Loyer : Trimestriel
Honoraires : Nous consulter
Information sur le Bail :
Charges incluent : maintenance préventive et vérifications complémentaires, fluides, travaux courants, honoraires, assurance propriétaire Taxe bureaux et parking : 1,68 euros/m²/an HT HC Honoraires PM : 0.30 % du loyer annuel
Prestations :
- Entrepôt de classe A
- Structure béton
- Hauteur libre : 14m
- Hauteur bâtiment 3 : 10,5m
- Résistance au sol : 5 T/m²
- Système de chauffage (hors-gel)
- Eclairage LED
- 60 quais de chargement
- Aires de béquillages
- Cour camion de 35 m
- Autorisation ICPE: 1510-1
- Enregistrements ICPE : 1530-2, 2662, 2663
- Déclarations ICPE : 1532-1, 2925, 4510
- Déclaration contrôlée ICPE : 4331.3
- ICPE non classés : 2920, 4320, 4321, 4511
- Sprinkler ESFR
- RIA
- Bassin de rétention
- 210 places VL
- 62 places PL
- Remplacement de l'intégralité des portes de quais, sas de quais, niveleurs de quais
- Rénové en 2022 (remplacement de la toiture, nouveau système de chauffage, rénovation des bureaux, remplacement des sprinklers)
- Surface RDC : 39391 m²
Accessibilité:
RER Gretz-Armainvilliers (RER E)
SNCF Gretz-Armainvilliers
Bus Lignes 3-11-21
Accès routier N4
Les informations sur les risques auxquels ce bien est exposé sont disponibles sur le site Géorisques : www.georisques.gouv.fr
Voir plus
Afficher les consommations énergétiques
Localisation et transport aux alentours
Favoris
Exporter
Appeler
Contacter
Signaler cette annonce




