Conseil en immobilier d'entreprise, Cushman & Wakefield est un acteur incontournable au rayonnement international. Cushman & Wakefield offre des solutions dans toutes les étapes que comporte un p ...
En savoir plus



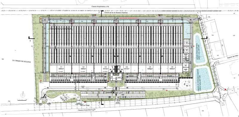
37 209 m² divisible dès 131 m²
Prix sur demande
Activité/Entrepôt à vendre - 37209 m²
Connantre (51230)
Dernière mise à jour : Il y a 4 mois
Nous vous proposons à la location un entrepôt de classe A neuf, situé dans la commune de Connantre. Localisé sur un axe routier majeur, la RN 4 qui relie Paris à Strasbourg, et à une vingtaine de minutes de la gare de péage de l'A26 et de l'aéroport de Vatry. La commune est distante d'une quarantaine de kilomètres de Châlons-en-Champagne, Préfecture du département, et proche des principaux centres de décision : 35km d'Epernay, 60km de Troyes, 80km de Reims et 130km de Paris.
La commune possède des entreprises de grande renommée sur son territoire, pour la plupart regroupées et située le long de la RN4. Elle offre un nombre d'emplois importants sur la commune et
assure une dynamique économique importante.
L'actif développera une surface totale d'environ 37.000m² divisibles. L'ensemble bénéficie d'une hauteur libre de 10m, de 50 quais, d'une charge admissible dallage cellules de stockage : 5 T/m² ainsi que d'un local vélo.
ICPE : 1510-2 (E), 1185 (DC) 4320-2 (D), 4321-2 (D), 4331-3 (NC), 2910-A (DC), 2925-1 (D), 2925-2 (D), 4718 (DC), 4734 (NC), 4735-1-b (DC), 4755 (NC), 2.1.5.0
De par ses prestations et sa localisation, le site se prêtera donc parfaitement à une activité de logistique régionale.
Honoraires : à la charge de l'acquéreur
Prestations :
Accessibilité:
Accès routier N4 (sortie D5 en direction de Pleurs)
Accès routier A26
Les informations sur les risques auxquels ce bien est exposé sont disponibles sur le site Géorisques : www.georisques.gouv.fr
La commune possède des entreprises de grande renommée sur son territoire, pour la plupart regroupées et située le long de la RN4. Elle offre un nombre d'emplois importants sur la commune et
assure une dynamique économique importante.
L'actif développera une surface totale d'environ 37.000m² divisibles. L'ensemble bénéficie d'une hauteur libre de 10m, de 50 quais, d'une charge admissible dallage cellules de stockage : 5 T/m² ainsi que d'un local vélo.
ICPE : 1510-2 (E), 1185 (DC) 4320-2 (D), 4321-2 (D), 4331-3 (NC), 2910-A (DC), 2925-1 (D), 2925-2 (D), 4718 (DC), 4734 (NC), 4735-1-b (DC), 4755 (NC), 2.1.5.0
De par ses prestations et sa localisation, le site se prêtera donc parfaitement à une activité de logistique régionale.
| Étage | Type | Surfaces | Dispo | Prix(m²) | Charges | Honoraires | Fiscal |
|---|---|---|---|---|---|---|---|
| RdC | Entrepôts | 5964 | n.c. | n.c. | à la charge de l'acquéreur | ||
| RdC | Entrepôts | 5964 | n.c. | n.c. | à la charge de l'acquéreur | ||
| RdC | Entrepôts | 5964 | n.c. | n.c. | à la charge de l'acquéreur | ||
| RdC | Entrepôts | 5964 | n.c. | n.c. | à la charge de l'acquéreur | ||
| RdC | Entrepôts | 5818 | n.c. | n.c. | à la charge de l'acquéreur | ||
| RdC | Entrepôts | 5818 | n.c. | n.c. | à la charge de l'acquéreur | ||
| RdC | Bureaux | 780 | n.c. | n.c. | à la charge de l'acquéreur | ||
| RdC | Locaux techniques | 333 | n.c. | n.c. | à la charge de l'acquéreur | ||
| RdC | Entrepôts | 139 | n.c. | n.c. | à la charge de l'acquéreur | ||
| RdC | Entrepôts | 139 | n.c. | n.c. | à la charge de l'acquéreur | ||
| RdC | Entrepôts | 135 | n.c. | n.c. | à la charge de l'acquéreur | ||
| RdC | Entrepôts | 131 | n.c. | n.c. | à la charge de l'acquéreur | ||
| RdC | Autres | 60 | n.c. | n.c. | à la charge de l'acquéreur |
Honoraires : à la charge de l'acquéreur
Prestations :
- Parcelle : 77 849 m²
- Entrepôt de classe A
- Certification BREEAM Very Good
- Hauteur libre 10 m.
- Charges admissibles dallage cellules de stockage : 5 T/m² uniformément répartis
- 50 quais
- Enregistrement ICPE : 1510-2b
- Déclaration ICPE : 4320-2, 4321-2
- Déclaration contrôlée ICPE : 1185-2a, 2910-A, 2925-1, 2925-2, 4718-2-b, 4735-1-B
- Déclaration non classée ICPE : 4331-3
- 100 places VL
- 3 places PL
- Local vélos de 20,5m²
- Surface RDC : 37209 m²
Accessibilité:
Accès routier N4 (sortie D5 en direction de Pleurs)
Accès routier A26
Les informations sur les risques auxquels ce bien est exposé sont disponibles sur le site Géorisques : www.georisques.gouv.fr
Voir plus
Afficher les consommations énergétiques
Localisation et transport aux alentours
Favoris
Exporter
Appeler
Contacter
Signaler cette annonce
