Avec près de 80 implantations en France, Arthur Loyd est le premier Réseau National de Conseil en Immobilier d’Entreprise. Nous vous accompagnons dans vos projets sur l’ensemble du territoire natio ...
En savoir plus

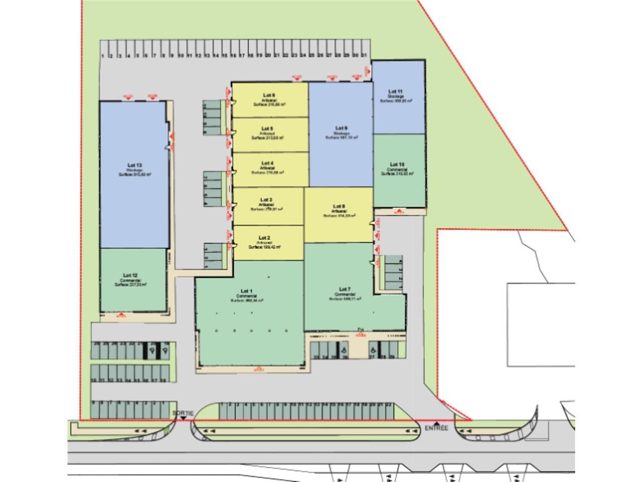
3 196 m² divisible dès 200 m²
Activité/Entrepôt à vendre - 3196 m²
Valliquerville (76190)
Dernière mise à jour : Il y a 7 mois
Projet sur-mesure à la sortie d'Yvetot ! Cellules d'activités et bureaux d'accompagnement pour votre société
Régime Fiscal : TVA
Honoraires : 6% HT du prix NV à la charge de l'acquéreur
Prestations :
Accessibilité:
SNCF Yvetot (France)
Route RD 6015
Les informations sur les risques auxquels ce bien est exposé sont disponibles sur le site Géorisques : www.georisques.gouv.fr
| Étage | Type | Surfaces | Dispo | Prix(m²) | Charges | Honoraires | Fiscal |
|---|---|---|---|---|---|---|---|
| Commerce | 860 | 1000 m² HD | n.c. | 6% HT du prix NV à la charge de l'acquéreur | TVA | ||
| Activités | 551 | 816,7 m² HD | n.c. | 6% HT du prix NV à la charge de l'acquéreur | TVA | ||
| Activités | 314 | 859,87 m² HD | n.c. | 6% HT du prix NV à la charge de l'acquéreur | TVA | ||
| Commerce | 310 | 887,1 m² HD | n.c. | 6% HT du prix NV à la charge de l'acquéreur | TVA | ||
| Activités | 310 | 806,45 m² HD | n.c. | 6% HT du prix NV à la charge de l'acquéreur | TVA | ||
| Activités | 219 | 821,92 m² HD | n.c. | 6% HT du prix NV à la charge de l'acquéreur | TVA | ||
| Activités | 217 | 829,49 m² HD | n.c. | 6% HT du prix NV à la charge de l'acquéreur | TVA | ||
| Activités | 215 | 837,21 m² HD | n.c. | 6% HT du prix NV à la charge de l'acquéreur | TVA | ||
| Activités | 200 | 875 m² HD | n.c. | 6% HT du prix NV à la charge de l'acquéreur | TVA |
Régime Fiscal : TVA
Honoraires : 6% HT du prix NV à la charge de l'acquéreur
Prestations :
- A la sortie d'Yvetot, sur la RD 6015 avec une forte visibilité un site en réhabilitation d'environ 4.400 m2 à usage de commerces et locaux d'activités, comprenant les finitions suivantes :
- Dallage béton
- Isolation en bardage et couverture
- Fluides et énergie en attente
- 1 place de stationnement pour 60 m2
- Projet adaptable en fonction de vos besoins.
- Immeuble indépendant
Accessibilité:
SNCF Yvetot (France)
Route RD 6015
Les informations sur les risques auxquels ce bien est exposé sont disponibles sur le site Géorisques : www.georisques.gouv.fr
Voir plus
Afficher les consommations énergétiques
Localisation et transport aux alentours
Favoris
Exporter
Appeler
Contacter
Signaler cette annonce


