Conseil en immobilier d'entreprise, Cushman & Wakefield est un acteur incontournable au rayonnement international. Cushman & Wakefield offre des solutions dans toutes les étapes que comporte un p ...
En savoir plus

Surface sur demande
Loyer sur demande
Coworking
Paris 15 (75015)
Dernière mise à jour : Il y a 4 jours
A toute proximité du centre commercial de Beaugrenelle
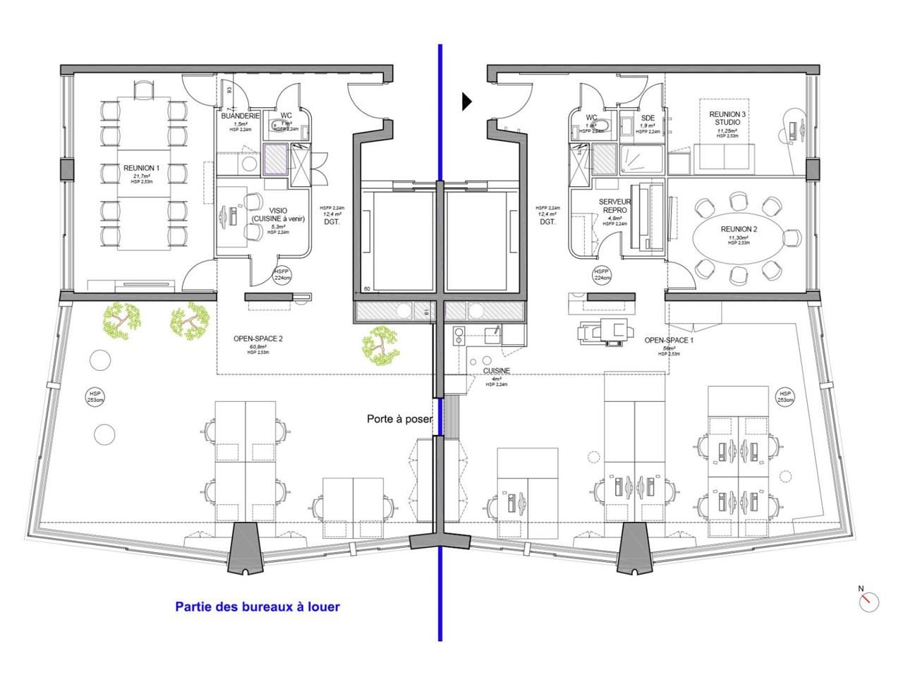
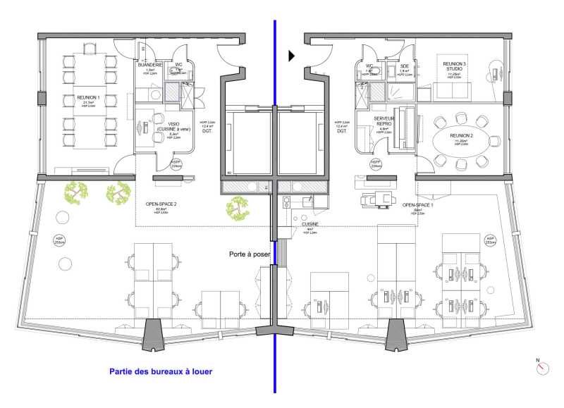
Cushman & Wakefield vous propose 120m² de surface de bureaux disponible à la location avec une très belle vue face à la Seine en plein coeur du 15ème arrondissement.
La surface est livrée rénovée et équipée. Vous pourrez profiter de 16 postes de travail, d'une grande salle de réunion et d'une belle cuisine. Le tout avec une vue exceptionnelle sur Paris !
Visite possible dès maintenant !
Régime Fiscal : T.V.A.
Dépôt de garantie : 3 mois de loyer HT/HC
Paiement Loyer : Trimestriel
Honoraires : à la charge du preneur
Information sur le Bail :
Loyer inclut les charges, taxes, mobilier et le ménage
Prestations :
Accessibilité:
RER Javel (RER C)
Métro Javel - André Citroën (ligne 10)
Bus Lignes 30-62-70-72-88
Les informations sur les risques auxquels ce bien est exposé sont disponibles sur le site Géorisques : www.georisques.gouv.fr
Cushman & Wakefield vous propose 120m² de surface de bureaux disponible à la location avec une très belle vue face à la Seine en plein coeur du 15ème arrondissement.
La surface est livrée rénovée et équipée. Vous pourrez profiter de 16 postes de travail, d'une grande salle de réunion et d'une belle cuisine. Le tout avec une vue exceptionnelle sur Paris !
Visite possible dès maintenant !
| Étage | Type | Surfaces | Dispo | Loyer | Charges | Type de bailRév. annuelle |
|---|---|---|---|---|---|---|
| 22 | Bureaux | 120 | 490 HT/HC/m²/an | Contrat de prestation de servicesSur l'indice ILAT |
Régime Fiscal : T.V.A.
Dépôt de garantie : 3 mois de loyer HT/HC
Paiement Loyer : Trimestriel
Honoraires : à la charge du preneur
Information sur le Bail :
Loyer inclut les charges, taxes, mobilier et le ménage
Prestations :
- Immeuble moderne en projet de restructuration
- Parties communes de bon standing
- Chauffage urbain
- Monte-charge
- Plateau rénové
- 16 postes de travail
- Espace traversant et lumineux
- Une grande salle de réunion
- Kitchenette
- Climatisation réversible
- Local technique
- Fibre optique
- Sanitaires
- Surface RDC : 0 m²
Accessibilité:
RER Javel (RER C)
Métro Javel - André Citroën (ligne 10)
Bus Lignes 30-62-70-72-88
Les informations sur les risques auxquels ce bien est exposé sont disponibles sur le site Géorisques : www.georisques.gouv.fr
Voir plus
Afficher les consommations énergétiques
Localisation et transport aux alentours
- Javel André Citroën312m (5min à pied)10
- Javel397m (6min à pied)C
Favoris
Exporter
Appeler
Contacter
Signaler cette annonce










