Evolis, votre partenaire en immobilier d’entreprise! Que vous soyez une entreprise, utilisateur de locaux professionnels, investisseur, ou propriétaire, Evolis met à votre service son expertise ...
En savoir plus

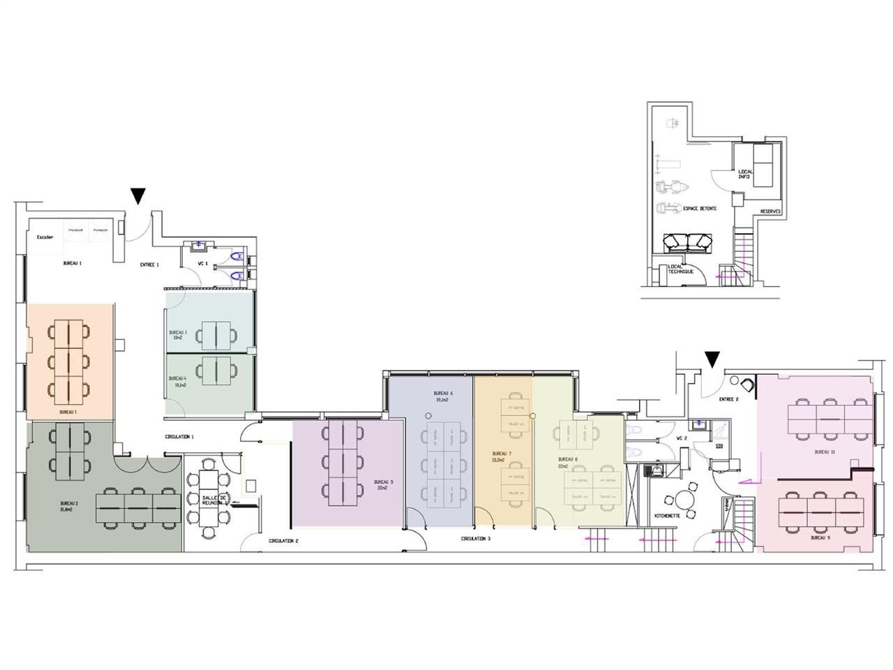
14 postes max
Loyer sur demande
Coworking - 14 postes max.
Paris 16 (75016)
Dernière mise à jour : Il y a 1 mois
EVOLIS vous propose d'installer votre activité dans un espace de travail convivial, idéalement situé au coeur d'un quartier dynamique du 16? arrondissement.
Dépôt de garantie : 2 mois de loyer HT HC
Paiement Loyer : Mensuel
Honoraires : 10% HT du loyer annuel HT HC à la charge du preneur
Information sur le Bail :
Possibilité d'avoir 1 box double en sus Le loyer comprend les charges immeubles, les charges privatives, le mobilier, les équipements, la fiscalité, les consommables et les prestations communes
Prestations :
Accessibilité:
Bus Javel (30, 88, N160), Pont Mirabeau (22, 62, 72, N61, N12), Perrichont (52)
Métro Mirabeau (10)
RER Javel (C)
SNCF Javel (Gare SNCF)
A 13 (Entrée A 13), A 13 (Sortie), Boulevard Périphérique Extérieur (Entrée Voie AD/15), Boulevard Périphérique Extérieur (Sortie Porte de Sèvres, Porte de Versailles), Boulevard Périphérique Intérieur (Entrée Rue René Ravaud), Boulevard Périphérique Intérieur (Sortie Rue René Ravaud)
Les informations sur les risques auxquels ce bien est exposé sont disponibles sur le site Géorisques : www.georisques.gouv.fr
| Étage | Type | Surfaces | Dispo | Loyer | Charges | Type de bailRév. annuelle |
|---|---|---|---|---|---|---|
| RDC | Bureaux | Immédiate | 250 poste/mois HT CC | Contrat de prestation de services |
Dépôt de garantie : 2 mois de loyer HT HC
Paiement Loyer : Mensuel
Honoraires : 10% HT du loyer annuel HT HC à la charge du preneur
Information sur le Bail :
Possibilité d'avoir 1 box double en sus Le loyer comprend les charges immeubles, les charges privatives, le mobilier, les équipements, la fiscalité, les consommables et les prestations communes
Prestations :
- Accès indépendant
- 2 open privatifs de 7 à 21 postes
- Le loyer inclut
- Salle de réunion partagée
- Salle de fitness
- Wifi
- Accès serveur
- Câblage RJ45
- Fibre
- Coin cafet'
- Climatisation
- Espace d'attente
- Espace détente
- Ménage
- Tables / chaises
- Imprimante
Accessibilité:
Bus Javel (30, 88, N160), Pont Mirabeau (22, 62, 72, N61, N12), Perrichont (52)
Métro Mirabeau (10)
RER Javel (C)
SNCF Javel (Gare SNCF)
A 13 (Entrée A 13), A 13 (Sortie), Boulevard Périphérique Extérieur (Entrée Voie AD/15), Boulevard Périphérique Extérieur (Sortie Porte de Sèvres, Porte de Versailles), Boulevard Périphérique Intérieur (Entrée Rue René Ravaud), Boulevard Périphérique Intérieur (Sortie Rue René Ravaud)
Les informations sur les risques auxquels ce bien est exposé sont disponibles sur le site Géorisques : www.georisques.gouv.fr
Voir plus
Afficher les consommations énergétiques
Localisation et transport aux alentours
Favoris
Exporter
Appeler
Contacter
Signaler cette annonce










