Evolis, votre partenaire en immobilier d’entreprise! Que vous soyez une entreprise, utilisateur de locaux professionnels, investisseur, ou propriétaire, Evolis met à votre service son expertise ...
En savoir plus

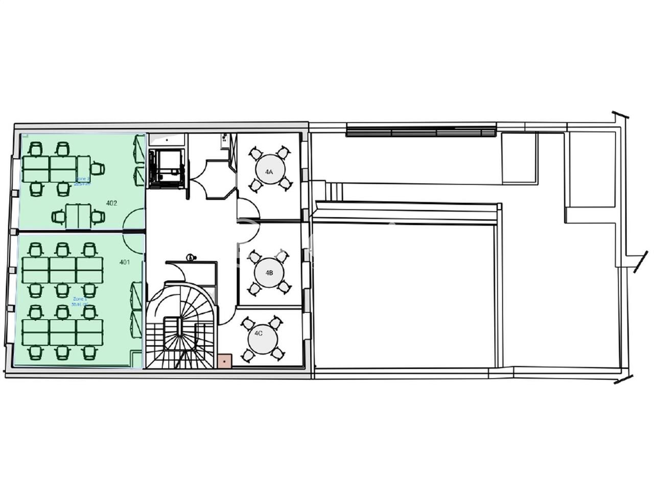
44 postes max
Loyer sur demande
Coworking - 44 postes max.
Paris 9 (75009)
Dernière mise à jour : Hier
"À la recherche d'espaces de travail modernes et fonctionnels à Paris? EVOLIS vous propose des bureaux en espace privatif au sein d'un centre de coworking de standing, pouvant accueillir jusqu'à 44 postes. Profitez d'une localisation stratégique, d'une superficie généreuse et d'un environnement professionnel de qualité.
Honoraires : 10% HT du montant du contrat annuel HT à la charge du preneur
Prestations :
Accessibilité:
Bus Blanche - Calais (68, 74), Blanche (30, 54, N01, N02), Place de Clichy - Caulaincourt (80, 95), Place de Clichy (21, N51, N15)
Métro Blanche (2), Place de Clichy (13), Pigalle (12)
RER Haussmann Saint-Lazare (E)
SNCF Paris-St-Lazare (France)
Les informations sur les risques auxquels ce bien est exposé sont disponibles sur le site Géorisques : www.georisques.gouv.fr
| Étage | Type | Surfaces | Dispo | Loyer | Charges | Type de bailRév. annuelle |
|---|---|---|---|---|---|---|
| 2 | Coworking | 106 | Janvier 2026 | 650 poste/mois/ HT/CC | Contrat de prestation de services |
Honoraires : 10% HT du montant du contrat annuel HT à la charge du preneur
Prestations :
- Espace tisanerie équipée
- 3 salles de réunion 4 personnes
- Fontaine à eau
- Terrasse privative extérieure
- Phone box, espace reprographie
- Bureaux de direction
Accessibilité:
Bus Blanche - Calais (68, 74), Blanche (30, 54, N01, N02), Place de Clichy - Caulaincourt (80, 95), Place de Clichy (21, N51, N15)
Métro Blanche (2), Place de Clichy (13), Pigalle (12)
RER Haussmann Saint-Lazare (E)
SNCF Paris-St-Lazare (France)
Les informations sur les risques auxquels ce bien est exposé sont disponibles sur le site Géorisques : www.georisques.gouv.fr
Voir plus
Afficher les consommations énergétiques
Localisation et transport aux alentours
Favoris
Exporter
Appeler
Contacter
Signaler cette annonce










