Au travers de 45 ans d'expérience, 45 collaborateurs, son réseau de 4 sites de proximité sur la Lorraine nord : Metz, Briey, Thionville et Norroy-le-Veneur, DUMUR IMMOBILIER s’est positionné comme ...
En savoir plus

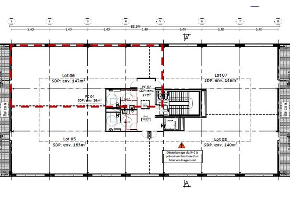
147 m²
Prix sur demande
Bureau à vendre - 147 m²
Norroy-le-Veneur (57140)
Dernière mise à jour : Il y a 2 jours
VOS 147 M² DE BUREAUX A ACHETER NEUFS AU COEUR DE L'ECOPARC DANS UN IMMEUBLE DE STANDING AUX PORTES DE METZ ET AMENAGEABLES SUR MESURE
Idéalement situés au cœur de l'Ecoparc, ces 147 m² de bureaux neufs offrent un cadre verdoyant avec tout le confort du neuf !
. Ces bureaux du 1er étage, sont livrés aménagés et équipés (Cloisonnement à la demande à charge de l'acquéreur)
. Vitrage à haute sélectivité solaire
. Eclairage LED
. Sols et plafonds à haute performance acoustique
. Hors cloisonnement de bureaux
. Le plus : 7 places privatives de stationnement
Immédiate
Situation:
- A NORROY LE VENEUR, ECOPARC, EMPLACEMENT STRATEGIQUE SUR UN SITE RECENT - Dessertes directes aux autoroutes A4 et A31 - Desservi par les transports en commun (Bus TIM) - Gare Metz TGV à 10 minutes - Nombreux services à proximité : commerces, 3 hôtels, restaurants, Zone Commerciale AUCHAN
Idéalement situés au cœur de l'Ecoparc, ces 147 m² de bureaux neufs offrent un cadre verdoyant avec tout le confort du neuf !
. Ces bureaux du 1er étage, sont livrés aménagés et équipés (Cloisonnement à la demande à charge de l'acquéreur)
. Vitrage à haute sélectivité solaire
. Eclairage LED
. Sols et plafonds à haute performance acoustique
. Hors cloisonnement de bureaux
. Le plus : 7 places privatives de stationnement
Immédiate
Situation:
- A NORROY LE VENEUR, ECOPARC, EMPLACEMENT STRATEGIQUE SUR UN SITE RECENT - Dessertes directes aux autoroutes A4 et A31 - Desservi par les transports en commun (Bus TIM) - Gare Metz TGV à 10 minutes - Nombreux services à proximité : commerces, 3 hôtels, restaurants, Zone Commerciale AUCHAN
Voir plus
Afficher les consommations énergétiques
Localisation et transport aux alentours
Favoris
Exporter
Appeler
Contacter
Signaler cette annonce







