Conseil en immobilier d'entreprise, Cushman & Wakefield est un acteur incontournable au rayonnement international. Cushman & Wakefield offre des solutions dans toutes les étapes que comporte un p ...
En savoir plus

Surface sur demande
Loyer sur demande
Coworking
Paris 3 (75003)
Dernière mise à jour : Il y a 2 jours
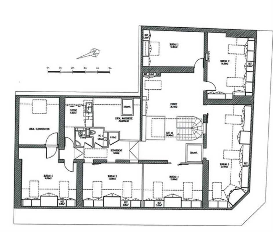
Cushman & Wakefield vous propose une opportunité exceptionnelle dans le coeur de Paris pour des bureaux d'une superficie de 372 m² non divisibles, idéalement situés dans un immeuble Haussmannien de bon standing.
Ces locaux en excellent état offrent un espace de travail optimal avec 5 bureaux cloisonnés, 3 open-space, fenêtres double vitrage, climatisation réversible, câblage informatique RJ45, borne wifi, balcon filant, cuisine au R+6, archives en sous-sol et parties communes de bon standing. Bénéficiant d'un accès sécurisé, d'un gardien et d'un ascenseur, ces locaux livrés meublés sont parfaits pour un contrat de prestations de services.
Ne manquez pas cette opportunité unique pour votre entreprise à Paris.
Régime Fiscal : T.V.A.
Dépôt de garantie : 3 mois de loyer HT/HC
Paiement Loyer : Trimestriel
Honoraires : à la charge du preneur
Taxe Bureau : 21,31 €/m²/an
Information sur le Bail :
Le loyer inclut les charges, les taxes, le mobilier, le ménage et vitrerie, internet, service accueil, service entretien climatisation, TEOM : en cours de détermination
Prestations :
Accessibilité:
Métro Arts et Métiers (lignes 3-11)
Métro Réaumur-Sébastopol (lignes 3-4)
Bus Lignes 38-39-47-20
velib Face 8 rue Salomon de Caus
Les informations sur les risques auxquels ce bien est exposé sont disponibles sur le site Géorisques : www.georisques.gouv.fr
Ces locaux en excellent état offrent un espace de travail optimal avec 5 bureaux cloisonnés, 3 open-space, fenêtres double vitrage, climatisation réversible, câblage informatique RJ45, borne wifi, balcon filant, cuisine au R+6, archives en sous-sol et parties communes de bon standing. Bénéficiant d'un accès sécurisé, d'un gardien et d'un ascenseur, ces locaux livrés meublés sont parfaits pour un contrat de prestations de services.
Ne manquez pas cette opportunité unique pour votre entreprise à Paris.
| Étage | Type | Surfaces | Dispo | Loyer | Charges | Type de bailRév. annuelle |
|---|---|---|---|---|---|---|
| 6 | Bureaux | 154 | 847 HT/HC/m²/an | Contrat de prestation de servicesSur l'indice ILAT | ||
| 5 | Bureaux | 218 | 847 HT/HC/m²/an | Contrat de prestation de servicesSur l'indice ILAT |
Régime Fiscal : T.V.A.
Dépôt de garantie : 3 mois de loyer HT/HC
Paiement Loyer : Trimestriel
Honoraires : à la charge du preneur
Taxe Bureau : 21,31 €/m²/an
Information sur le Bail :
Le loyer inclut les charges, les taxes, le mobilier, le ménage et vitrerie, internet, service accueil, service entretien climatisation, TEOM : en cours de détermination
Prestations :
- Immeuble Haussmannien de bon standing
- Parties communes de bon standing
- Gardien
- Accès sécurisé
- Ascenseur
- Locaux en excellent état
- Locaux livrés meublés
- 5 bureaux cloisonnés
- 3 open-space
- Fenêtres double vitrage
- Climatisation réversible
- Câblage informatique RJ45
- Borne wifi
- Balcon filant
- Cuisine au R+6
- Archives en sous-sol
Accessibilité:
Métro Arts et Métiers (lignes 3-11)
Métro Réaumur-Sébastopol (lignes 3-4)
Bus Lignes 38-39-47-20
velib Face 8 rue Salomon de Caus
Les informations sur les risques auxquels ce bien est exposé sont disponibles sur le site Géorisques : www.georisques.gouv.fr
Voir plus
Afficher les consommations énergétiques
Localisation et transport aux alentours
Favoris
Exporter
Appeler
Contacter
Signaler cette annonce










