Conseil en immobilier d'entreprise, Cushman & Wakefield est un acteur incontournable au rayonnement international. Cushman & Wakefield offre des solutions dans toutes les étapes que comporte un p ...
En savoir plus

1 363 m²
SANTOS DUMONT - Bureau à vendre - 1363 m²
Vélizy-Villacoublay (78140)
Dernière mise à jour : Il y a 2 jours
Immeuble indépendant, au pied du T6
Immeuble SANTOS DUMONT
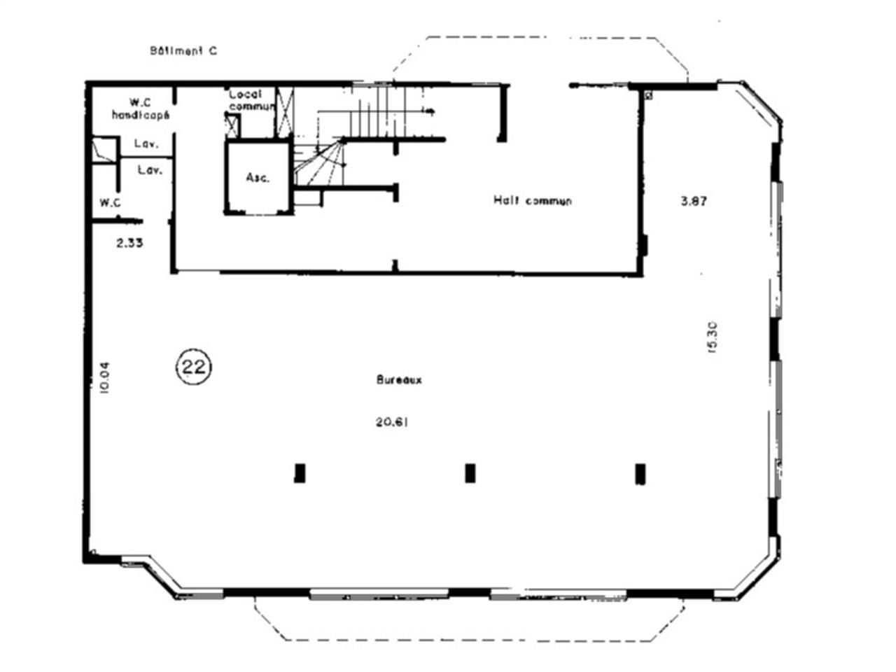
À Vélizy-Villacoublay, 23 avenue Louis Bréguet, immeuble indépendant de bureaux à vendre d'une surface totale de 1 362 m² au sein de l'ensemble Santos Dumont - bâtiment E, situé au coeur d'Inovel Parc et au pied du tramway T6 "Louvois".
Cet immeuble indépendant bénéficie d'un accès sécurisé par digicode, d'un hall d'accueil et de parties communes rénovées. Les plateaux, répartis du rez-de-chaussée au R+4, offrent des aménagements flexibles en open-space ou partiellement cloisonnés, avec plinthes périphériques double compartiments, sanitaires privatifs et climatisation double flux ou réversible selon les lots. Ascenseur, air rafraîchi et convecteurs électriques complètent les équipements techniques.
Accessibilité directe : A86 et N118, lignes de bus 279, 291, 295, 390, RER C Chaville-Vélizy et aéroport d'Orly à 19 km.
Prix de vente : 2 300 euros / m² HD/HT.
Une opportunité pour utilisateurs ou investisseurs souhaitant acquérir des bureaux à vendre au sein d'un pôle tertiaire majeur de l'ouest parisien.
Impôt Foncier : 11 €/euros/m²/an
Régime Fiscal : Droits d'enregistrement
Honoraires : 4 % HT du prix de vente HD à la charge de l'acquéreur
Taxe Bureau : 11,66 €/m²/an
Prestations :
Accessibilité:
Aéroport Aéroport d'Orly à 19 km
Accès routier Accès direct A86, N118
Tram T6 "Louvois" au pied de l'immeuble
Bus Lignes 279, 291, 295, 390
RER Chaville Vélizy (RER C)
Les informations sur les risques auxquels ce bien est exposé sont disponibles sur le site Géorisques : www.georisques.gouv.fr
Immeuble SANTOS DUMONT
À Vélizy-Villacoublay, 23 avenue Louis Bréguet, immeuble indépendant de bureaux à vendre d'une surface totale de 1 362 m² au sein de l'ensemble Santos Dumont - bâtiment E, situé au coeur d'Inovel Parc et au pied du tramway T6 "Louvois".
Cet immeuble indépendant bénéficie d'un accès sécurisé par digicode, d'un hall d'accueil et de parties communes rénovées. Les plateaux, répartis du rez-de-chaussée au R+4, offrent des aménagements flexibles en open-space ou partiellement cloisonnés, avec plinthes périphériques double compartiments, sanitaires privatifs et climatisation double flux ou réversible selon les lots. Ascenseur, air rafraîchi et convecteurs électriques complètent les équipements techniques.
Accessibilité directe : A86 et N118, lignes de bus 279, 291, 295, 390, RER C Chaville-Vélizy et aéroport d'Orly à 19 km.
Prix de vente : 2 300 euros / m² HD/HT.
Une opportunité pour utilisateurs ou investisseurs souhaitant acquérir des bureaux à vendre au sein d'un pôle tertiaire majeur de l'ouest parisien.
| Étage | Type | Surfaces | Dispo | Prix(m²) | Charges | Honoraires | Fiscal |
|---|---|---|---|---|---|---|---|
| 4 | Bureaux | 259,7 | 2300 /m² HD.HT | n.c. | 4 % HT du prix de vente HD à la charge de l'acquéreur | Droits d'enregistrement | |
| 3 | Bureaux | 257,2 | 2300 /m² HD.HT | n.c. | 4 % HT du prix de vente HD à la charge de l'acquéreur | Droits d'enregistrement | |
| 2 | Bureaux | 256,1 | 2300 /m² HD.HT | n.c. | 4 % HT du prix de vente HD à la charge de l'acquéreur | Droits d'enregistrement | |
| 1 | Bureaux | 310,3 | 2300 /m² HD.HT | n.c. | 4 % HT du prix de vente HD à la charge de l'acquéreur | Droits d'enregistrement | |
| RdC | Bureaux | 279,3 | 2300 /m² HD.HT | n.c. | 4 % HT du prix de vente HD à la charge de l'acquéreur | Droits d'enregistrement |
Impôt Foncier : 11 €/euros/m²/an
Régime Fiscal : Droits d'enregistrement
Honoraires : 4 % HT du prix de vente HD à la charge de l'acquéreur
Taxe Bureau : 11,66 €/m²/an
Prestations :
- Accès sécurisé et digicode
- Hall d'accueil
- Possibilité de hall indépendant privatif selon les surfaces louées
- Parties communes rénovées et décorées
- Ascenseur
- Air rafraîchi et convecteurs électriques
- Bureaux rénovés selon les lots
- Bureaux en open-space et cloisonnement partiel
- Plinthes périphériques ouble compartiments
- Sanitaires H/F privatifs selon les lots
- Climatisation double-flux pour certains lots
- Climatisation réversible neuve selon les lots
- Les surfaces indiquées sont les surfaces Carrez
- Immeuble indépendant
- Surface RDC : 279,3 m²
Accessibilité:
Aéroport Aéroport d'Orly à 19 km
Accès routier Accès direct A86, N118
Tram T6 "Louvois" au pied de l'immeuble
Bus Lignes 279, 291, 295, 390
RER Chaville Vélizy (RER C)
Les informations sur les risques auxquels ce bien est exposé sont disponibles sur le site Géorisques : www.georisques.gouv.fr
Voir plus
Afficher les consommations énergétiques
Localisation et transport aux alentours
Favoris
Exporter
Appeler
Contacter
Signaler cette annonce










