Nous sommes Immprove, une grande équipe de plus de 200 experts en immobilier d’entreprise, implantés localement avec plus de 20 agences sur tout le territoire.Depuis 2009, notre proximité, notre ét ...
En savoir plus

243 m² divisible dès 119 m²
Bureau à vendre - 243 m²
Pornic (44210)
Dernière mise à jour : Il y a 2 mois
Dans un immeuble neuf de bureaux (sous garantie décennale) à proximité de Nantes, proche littoral, Immprove vous propose à la vente deux plateaux de bureaux loués disponibles à la division.
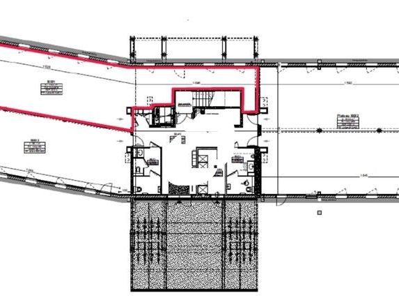
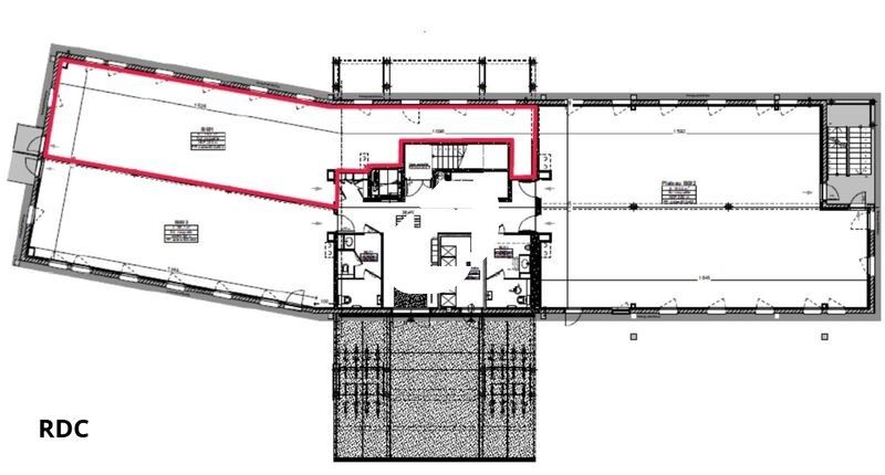
RDC de 131,51m² loué en bail 6/9 à un établissement public de santé.
1er étage de 138,09 m² loué en bail 3/6/9 à une société de conseil.
Rendement AEM : 6,51%
Taux réduit des frais d'enregistrement
Régime Fiscal : Droits d'enregistrement + TVA récupérable
Honoraires : 5% HT du prix de vente HT à la charge de l'acquéreur
Prestations :
Accessibilité:
SNCF Gare de Pornic à 1.6kms
Autoroute D213-D751
Bus 315
Pistes cyclables
Les informations sur les risques auxquels ce bien est exposé sont disponibles sur le site Géorisques : www.georisques.gouv.fr
RDC de 131,51m² loué en bail 6/9 à un établissement public de santé.
1er étage de 138,09 m² loué en bail 3/6/9 à une société de conseil.
Rendement AEM : 6,51%
Taux réduit des frais d'enregistrement
| Étage | Type | Surfaces | Dispo | Prix(m²) | Charges | Honoraires | Fiscal |
|---|---|---|---|---|---|---|---|
| R+1 | Bureaux | 124,6 | Immédiate | n.c. | n.c. | 5% HT du prix de vente HT à la charge de l'acquéreur | Droits d'enregistrement + TVA récupérable |
| RDC | Bureaux | 118,74 | Immédiate | n.c. | n.c. | 5% HT du prix de vente HT à la charge de l'acquéreur | Droits d'enregistrement + TVA récupérable |
Régime Fiscal : Droits d'enregistrement + TVA récupérable
Honoraires : 5% HT du prix de vente HT à la charge de l'acquéreur
Prestations :
- Immeuble neuf
- Accès PMR
- Parties communes de qualité
- Ascenseur
- Jardin paysager
- RDC 118.74 m² + 4 parkings
- Loués en bail 6/9 à 21.923 euros / an HT HC
- Surloyer pour travaux d'aménagement refacturé par le vendeur à prévoir
- 1 er étage 124.60 m² + 4 parkings
- Loués en bail 3/6/9 à 21.500 euros/ an HT HC
- Surface RDC : 118,74 m²
Accessibilité:
SNCF Gare de Pornic à 1.6kms
Autoroute D213-D751
Bus 315
Pistes cyclables
Les informations sur les risques auxquels ce bien est exposé sont disponibles sur le site Géorisques : www.georisques.gouv.fr
Voir plus
Afficher les consommations énergétiques
Favoris
Exporter
Appeler
Contacter
Signaler cette annonce




