Locaux Bureaux Commerces est une agence spécialiste de l'immobilier d'entreprise qui accompagne ses clients utilisateurs, propriétaires et investisseurs pour : - la réalisation d'avis de valeur loc ...
En savoir plus

121 m²
Bureau à vendre - 121 m²
Nantes (44000)
Publiée : Il y a 27 jours
Nantes - A vendre bureau 120 m2
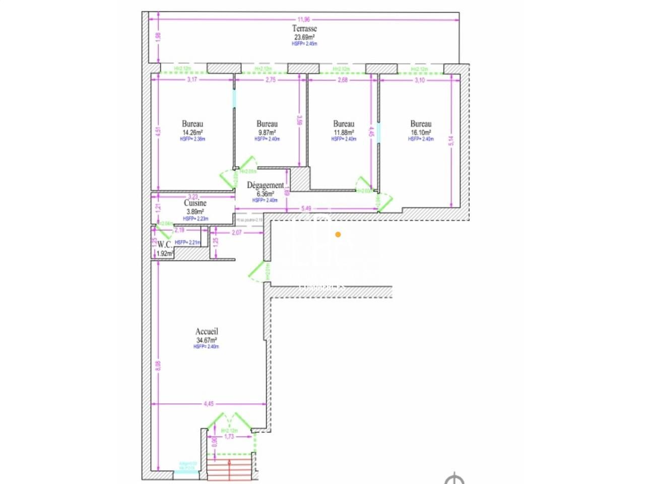
A vendre : Au RDC d'un immeuble, espace bureaux avec vitrine, terrasse et vue sur jardin, d'environ 121 m², idéalement situé rue Bertrand Geslin, à deux pas du centre-ville et à proximité du boulevard Guist'hau.
Aménagements :
4 bureaux cloisonnés
1 open space lumineux
Accueil chaleureux avec vitrine sur rue
Coin kitchenette
Sanitaires
Terrasse privative avec vue agréable sur jardin
2 places de parking en sous-sol
1 cave
Prix de vente : 550 000 € HT net vendeur
Honoraires de commercialisation à la charge de l'acquéreur : 5 % HT (+ TVA 20 %)
Sonia BERNOVILLE
Agent commercial
RSAC ADC 4401 2025 000 000 874
LOCAUX-BUREAUX-COMMERCES 02 52 56 85 55
Honoraires inclus de 5% HT à la charge de l'acquéreur. Prix hors honoraires 550 000 € HT. Non soumis au DPE. Les informations sur les risques auxquels ce bien est exposé sont disponibles sur le site Géorisques : georisques.gouv.fr. Ce bien vous est proposé par un agent commercial (Entreprise individuelle).
Votre conseiller LOCAUX-BUREAUX-COMMERCES : Sonia BERNOVILLE
Agent commercial (Entreprise individuelle)
RSAC ADC 4401 2025 000 000 874
RCP RCACO-24-028977 GALIAN SMA BTP.
LOCAUX-BUREAUX-COMMERCES 02 52 56 85 55
A vendre : Au RDC d'un immeuble, espace bureaux avec vitrine, terrasse et vue sur jardin, d'environ 121 m², idéalement situé rue Bertrand Geslin, à deux pas du centre-ville et à proximité du boulevard Guist'hau.
Aménagements :
4 bureaux cloisonnés
1 open space lumineux
Accueil chaleureux avec vitrine sur rue
Coin kitchenette
Sanitaires
Terrasse privative avec vue agréable sur jardin
2 places de parking en sous-sol
1 cave
Prix de vente : 550 000 € HT net vendeur
Honoraires de commercialisation à la charge de l'acquéreur : 5 % HT (+ TVA 20 %)
Sonia BERNOVILLE
Agent commercial
RSAC ADC 4401 2025 000 000 874
LOCAUX-BUREAUX-COMMERCES 02 52 56 85 55
Honoraires inclus de 5% HT à la charge de l'acquéreur. Prix hors honoraires 550 000 € HT. Non soumis au DPE. Les informations sur les risques auxquels ce bien est exposé sont disponibles sur le site Géorisques : georisques.gouv.fr. Ce bien vous est proposé par un agent commercial (Entreprise individuelle).
Votre conseiller LOCAUX-BUREAUX-COMMERCES : Sonia BERNOVILLE
Agent commercial (Entreprise individuelle)
RSAC ADC 4401 2025 000 000 874
RCP RCACO-24-028977 GALIAN SMA BTP.
LOCAUX-BUREAUX-COMMERCES 02 52 56 85 55
Voir plus
Afficher les consommations énergétiques
Localisation et transport aux alentours
Favoris
Exporter
Appeler
Contacter
Signaler cette annonce










