L’agence CBRE Nantes conseille et accompagne les chefs d’entreprise dans leurs projets immobiliers quels que soient leur taille et leur secteur d’activité. Spécialistes de la transaction de bureaux ...
En savoir plus

1 010 m²
Bureau à vendre - 1010 m²
Nantes (44000)
Dernière mise à jour : Il y a 3 jours
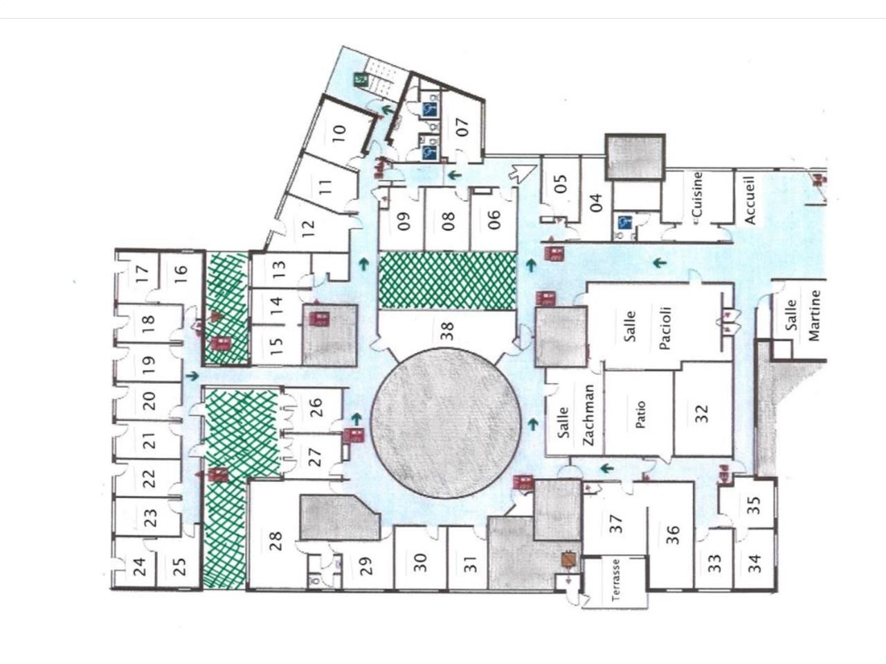
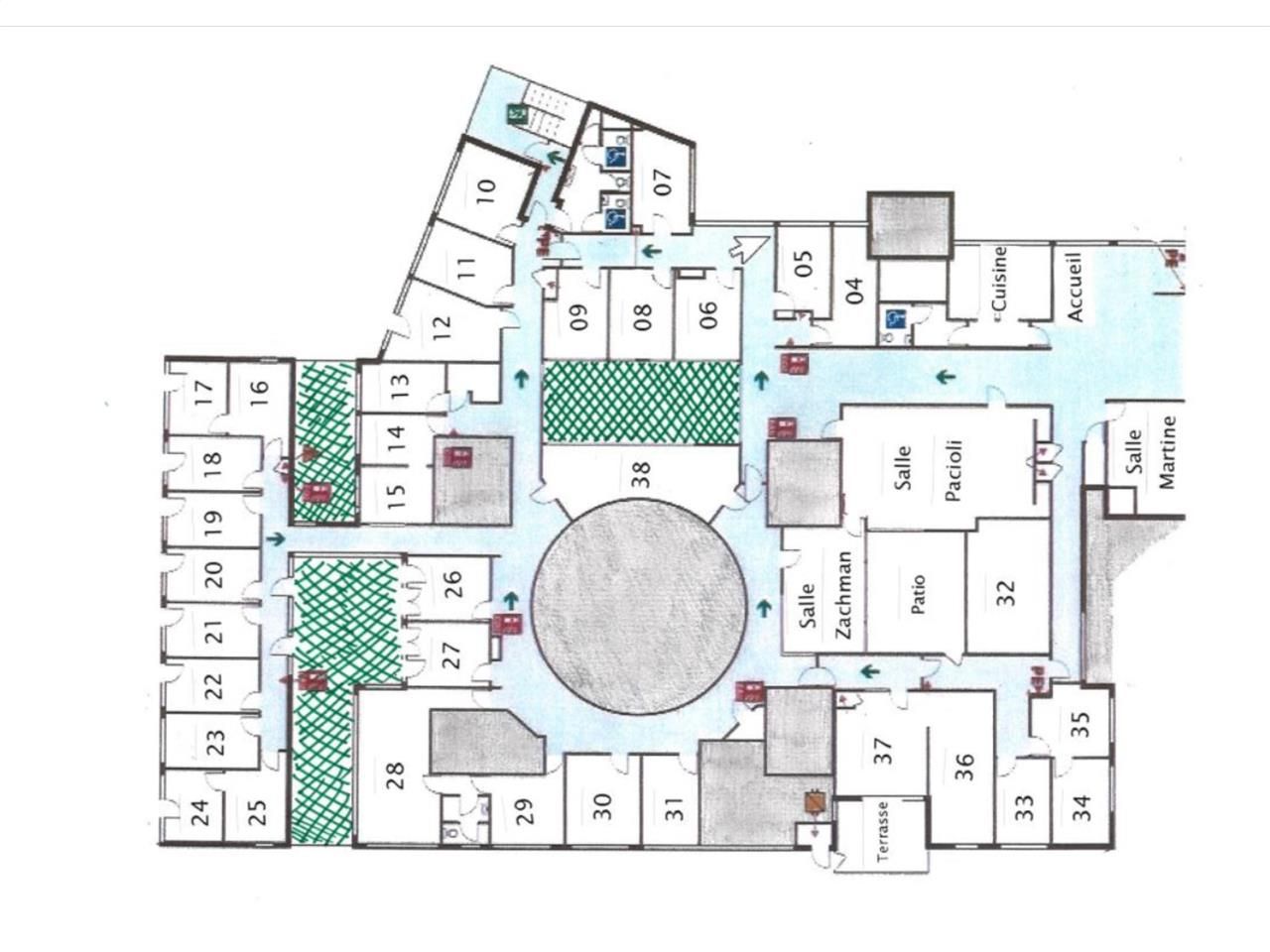
Au coeur du centre ville de Nantes, à proximité immédiate de la Place Graslin, CBRE vous propose à la location et à la vente un plateau de bureaux rénové d'environ 1 000 m² en étage élevé. Vous disposerez d'une surface atypique, lumineuse et profiterez d'espaces extérieurs privatifs (terrasse et patios intérieurs). Possibilité de stationnements au sein du parking Graslin.
Au coeur du centre ville de Nantes, à proximité de la rue Crébillon et de nombreux restaurants, l'immeuble propose une localisation répondant aux attentes de vos collaborateurs : quartier dynamique, bureaux en étage élevé, espaces extérieurs privatifs et possibilité de stationnements au sein de l'immeuble.
Impôt Foncier : 14 €/
Régime Fiscal : Droits d'enregistrement
Dépôt de garantie : 3 mois de loyer HT/HC
Paiement Loyer : trimestriel
Honoraires : A la charge de l'acquéreur
Prestations :
Accessibilité:
Bus Graslin (11), Copernic (23, C1, C3), Delorme (26, 54, C6)
Tramway Médiathèque (1), Place du Cirque (2), Bretagne (3)
Les informations sur les risques auxquels ce bien est exposé sont disponibles sur le site Géorisques : www.georisques.gouv.fr
Au coeur du centre ville de Nantes, à proximité de la rue Crébillon et de nombreux restaurants, l'immeuble propose une localisation répondant aux attentes de vos collaborateurs : quartier dynamique, bureaux en étage élevé, espaces extérieurs privatifs et possibilité de stationnements au sein de l'immeuble.
| Étage | Type | Surfaces | Dispo | Prix(m²) | Charges | Honoraires | Fiscal |
|---|---|---|---|---|---|---|---|
| 6 | Bureaux | 1010 | Immédiate | 3267,33 m² HD | n.c. | A la charge de l'acquéreur | Droits d'enregistrement |
Impôt Foncier : 14 €/
Régime Fiscal : Droits d'enregistrement
Dépôt de garantie : 3 mois de loyer HT/HC
Paiement Loyer : trimestriel
Honoraires : A la charge de l'acquéreur
Prestations :
- Contrôle d'accès
- Ascenseur
- Espace accueil
- Plateau rénové
- Cloisonnement amovible
- Terrasse privative et patio intérieur
- Surface lumineuse et fonctionnelle
- Bureaux cloisonnés et open space
- Salles de réunion
- Chauffage gaz
- Espace cafétéria
- Tisanerie
- Douche
- Rangements
Accessibilité:
Bus Graslin (11), Copernic (23, C1, C3), Delorme (26, 54, C6)
Tramway Médiathèque (1), Place du Cirque (2), Bretagne (3)
Les informations sur les risques auxquels ce bien est exposé sont disponibles sur le site Géorisques : www.georisques.gouv.fr
Voir plus
Afficher les consommations énergétiques
Localisation et transport aux alentours
Favoris
Exporter
Appeler
Contacter
Signaler cette annonce










