BNP Paribas Real Estate Lille, qui revendique plus de 40 ans de présence sur le marché lillois, est composé d''une équipe expérimentée aux expertises diversifiées. Elle est principalement composée ...
En savoir plus

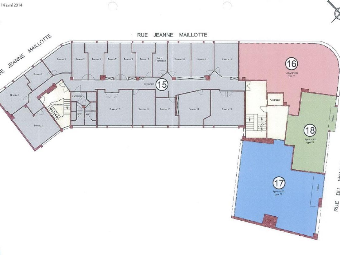
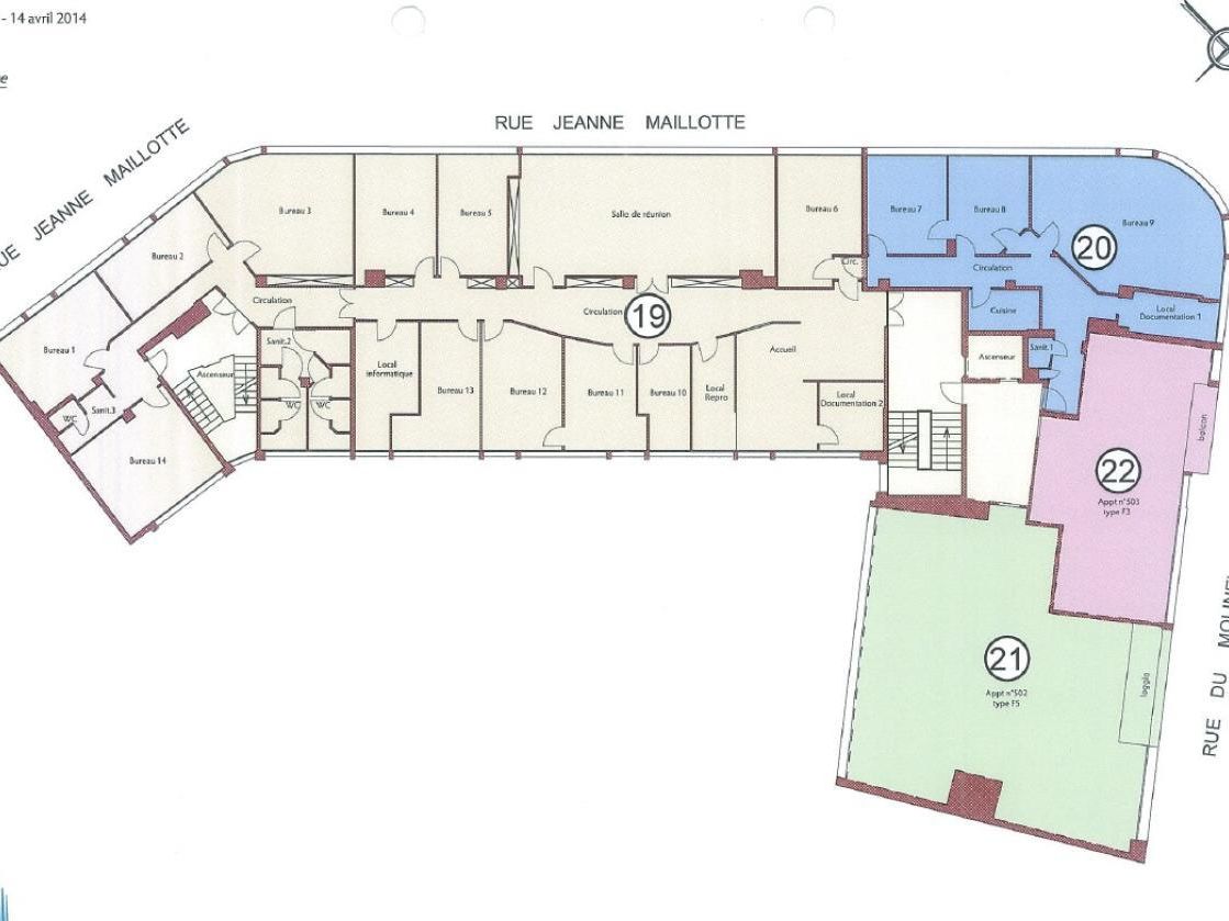
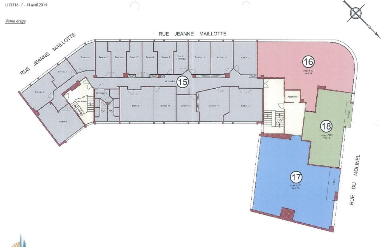
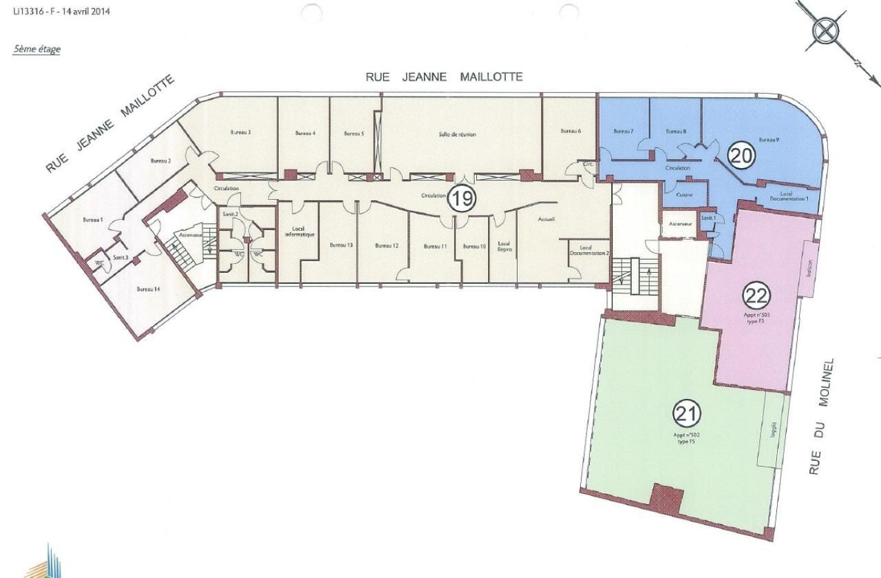
1 182 m² divisible dès 362 m²
Bureau à vendre - 1182 m²
Lille (59000)
Dernière mise à jour : Il y a 23 jours
Bureaux à louer ou à vendre à Lille centre, à deux pas des gares : des espaces modernes, aménagés et lumineux dans un environnement professionnel dynamique et parfaitement connecté. BNP Paribas Real Estate vous propose des bureaux aménagés au coeur de Lille, à louer ou à vendre.
Idéalement situés à Lille, ces bureaux offrent un environnement dynamique et parfaitement desservi (gares de Lille, bus, métro, vélos partagés) ainsi que tous les services du Centre à proximité.
Les plateaux sont aménagés et fonctionnels, comprenant :
- Bureaux cloisonnés, open space, salles de réunion et espace cuisine
- Faux plafond, luminaires encastrés et sol PVC
- Ascenseur desservant tous les niveaux
- Balcon filant au R+6
- 15 places de parking disponibles en sous-sol et comprises dans le loyer/prix
- Services et commerces en pied d'immeuble
Un emplacement stratégique au coeur de Lille, alliant confort, accessibilité et qualité de vie au travail.
Toutes nos offres de bureaux à vendre sur https://www.bnppre.fr/a-vendre/bureau/nord-59/lille-59000/
Disponibilité: ImmédiateHonoraires: 5% HT du prix HT/HD. à la signature de l'acte
| Fiche technique du bien | |
|---|---|
| Métro | ligne 1 Arrêt "République Beaux-Arts" 100 m |
| Bus | Nombreuses lignes de bus à 100m 100 m |
| Gare | Europe Gare TGV "Lille Europe" à - de 20 minutes à pieds 1 km |
| Gare | Flandre Gare TER/TGV "Lille Flandres" à - de 15 minutes à pieds 900 m |
| Etat des locaux | Etat d'usage |
Afficher les consommations énergétiques
Localisation et transport aux alentours
Favoris
Exporter
Appeler
Contacter
Signaler cette annonce










