L’équipe Bureaux Vente Paris IDF de Bnp Paribas Real Estate compte 11 collaborateurs, spécialisés dans la vente et l’acquisition de bureaux vides, qui interviennent sur les secteurs de Paris, du Cr ...
En savoir plus

307 m²
Bureau à vendre - 307 m²
Levallois-Perret (92300)
Dernière mise à jour : Il y a 2 jours
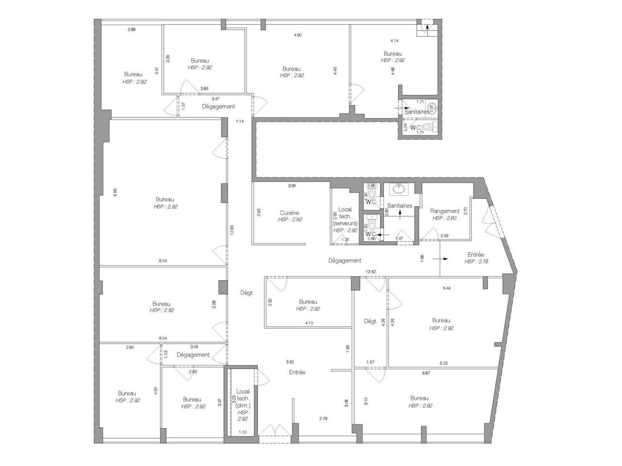
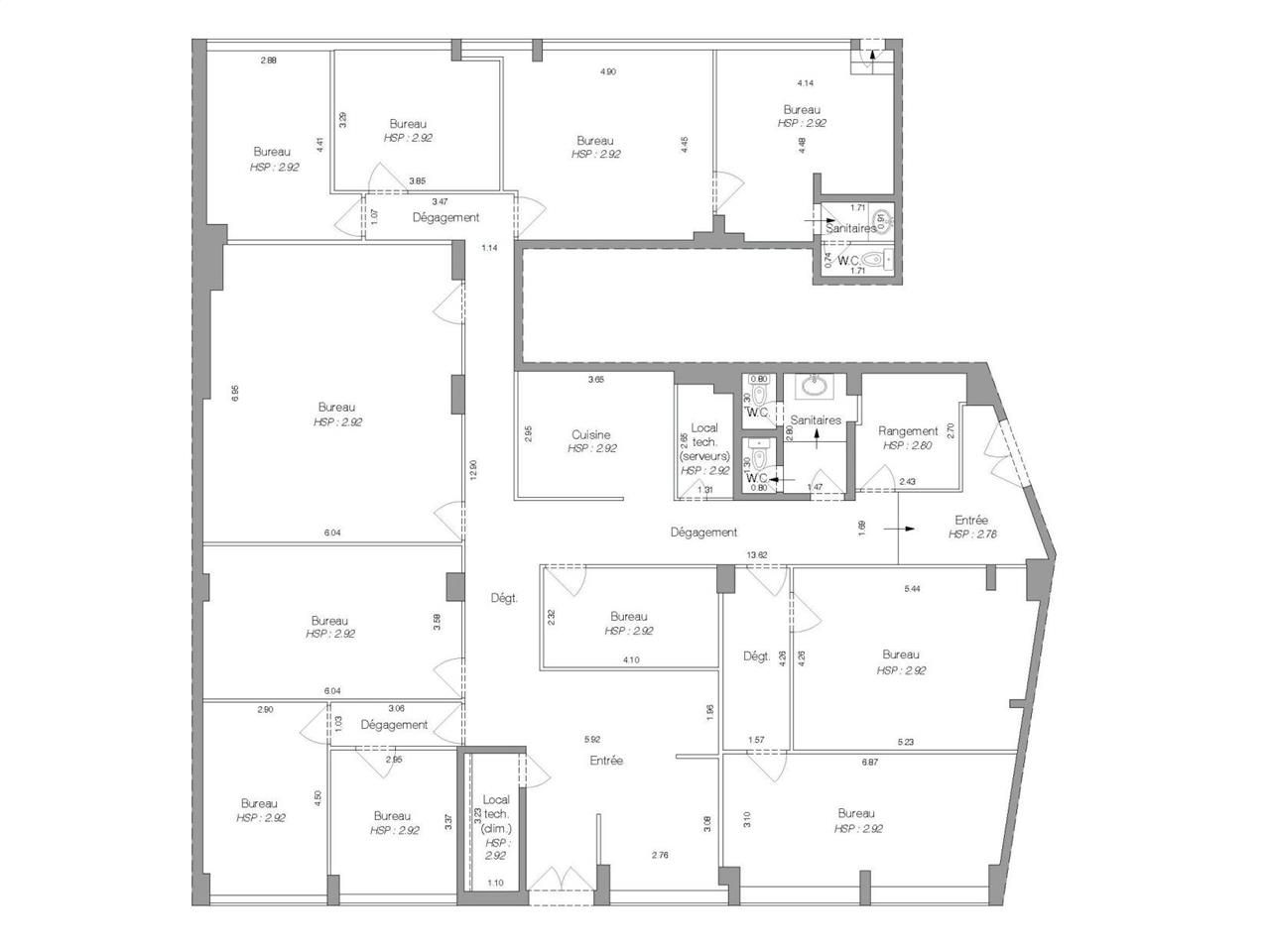
A VENDRE BUREAUX 306,5M² LEVALLOIS-PERRET
A proximité immédiate du métro, nous vous proposons à la vente une surface de bureaux d'environ 306,5m² profitant d'un accès indépendant sur rue et d'une excellente visibilité.
Surface modulable, traversante avec une belle hauteur sous plafond.
Parkings en sous-sol.
Disponibilité: ImmédiateHonoraires: Nous consulter. à la signature de l'acte
| Fiche technique du bien | |
|---|---|
| Métro | M3 Anatole France 50 m |
| Bus | Rejoint la Défense 10 m |
| Immeuble | Mixte |
| Etat de l'immeuble | Etat d'usage Immeuble mixte avec entrée indépendante |
| Etat des locaux | Etat d'usage Entrée indépendant en RDC sur rue |
| Parking(s) | Oui |
| Climatisation | Réversible |
| Environnement de proximité | Commerces et restaurants |
| Aménagement des bureaux | Cloisonnés/Ouverts |
| Hauteur sous-plafond | 3,00 mètre(s) |
| Sanitaire(s) | Privatif(s) |
Afficher les consommations énergétiques
Favoris
Exporter
Appeler
Contacter
Signaler cette annonce










