L’agence CBRE Lille conseille et accompagne les chefs d’entreprise dans leurs projets immobiliers quels que soient leur taille et leur secteur d’activité. Spécialistes de la transaction de bureaux, ...
En savoir plus

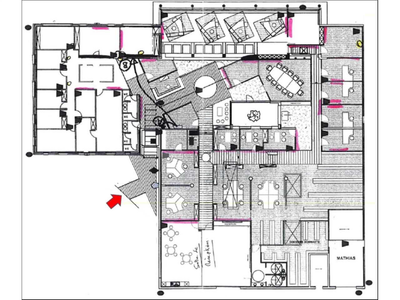
1 200 m²
Bureau à vendre - 1200 m²
La Madeleine (59110)
Dernière mise à jour : Il y a 2 jours
En bordure du périphérique et face au Vieux-Lille, la zone du Pré Catelan bénéficie d'une très bonne accessibilité. Cet immeuble de bureaux indépendant propose des surfaces en très bon état, construit sur un foncier développant près de 4 000 m², permettant une implantation très modulable (bureaux, show-room, stockage...).
Régime Fiscal : Droits d'enregistrement
Dépôt de garantie : 3 mois de loyer HT/HC
Honoraires : Honoraires inclus
Prestations :
Accessibilité:
Bus Arrêt "Pre Catelan"
SNCF Gare de Saint-André
Route Accès direct périphérique
Les informations sur les risques auxquels ce bien est exposé sont disponibles sur le site Géorisques : www.georisques.gouv.fr
| Étage | Type | Surfaces | Dispo | Prix(m²) | Charges | Honoraires | Fiscal |
|---|---|---|---|---|---|---|---|
| RDC | Bureaux | 1200 | Immédiate | n.c. | n.c. | Honoraires inclus | Droits d'enregistrement |
| Terrain | 4178 | Immédiate | n.c. | n.c. | Honoraires inclus | Droits d'enregistrement |
Régime Fiscal : Droits d'enregistrement
Dépôt de garantie : 3 mois de loyer HT/HC
Honoraires : Honoraires inclus
Prestations :
- Contrôle d'accès
- Alarme
- Cloisonnement
- Chauffage gaz
- Câblage : catégorie 5
- Faux plafond
- Site entièrement clos
- 2 entrées et 1 porte sectionnelle
- Très bon état
- 50 places de parking inclus dans le loyer
- Inclus dans les charges : taxe foncière, assurance.
- Gestion portail : 600 euros
- Surface RDC : 1200 m²
Accessibilité:
Bus Arrêt "Pre Catelan"
SNCF Gare de Saint-André
Route Accès direct périphérique
Les informations sur les risques auxquels ce bien est exposé sont disponibles sur le site Géorisques : www.georisques.gouv.fr
Voir plus
Afficher les consommations énergétiques
Favoris
Exporter
Appeler
Contacter
Signaler cette annonce










