Leader mondial des services dédiés à l'immobilier d'entreprise, Cushman & Wakefield accompagne ses clients dans la transformation de leurs modes de travail, de consommation et de vie. Nos 43 000 co ...
En savoir plus

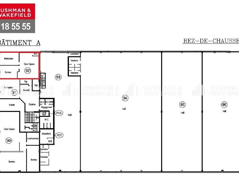
102 m²
Bureau à vendre - 102 m²
Bischheim (67800)
Dernière mise à jour : Il y a 2 jours
Bureaux disponibles à la vente, au sein d'un btiment d'activité multi-cellules, sur site clos. Répartie sur les bans communaux de Bischheim et de Hoenheim, à proximité du terminus de la ligne B du tram, la zone industrielle intercommunale regroupe un grand nombre de PME et de PMI. Créée en 1966, cette zone artisanale et industrielle s''est diversifiée au cours des années pour devenir une zone mixte, avec des restaurants et des enseignes commerciales. Le service Activité de Cushman & Wakefield Strasbourg vous propose des bureaux à vendre, situés à Bischheim (67800), d'une surface totale de 102 m² non divisibles au sein d'un site industriel récent, reconverti en btiment d'activité multi cellules, sur site clos. N'hésitez plus, contactez-nous pour convenir d'une visite ! . Bureaux aménagés et cloisonnés . Eclairage LED . Climatisation réversible . Faux plafond . Sol thermoplastique . Sanitaires communs Cloisonnement : 1 open space, 1 salle de réunion, 1 réfectoire, 1 sanitaire Parkings extérieurs privatifs Zone accessible par l'autoroute A4, sortie Vendenheim/Reichstett + sortie Wacken/rue du Marais
Voir plus
Afficher les consommations énergétiques
Localisation et transport aux alentours
Favoris
Exporter
Appeler
Contacter
Signaler cette annonce



