Nous sommes Immprove, une grande équipe de plus de 200 experts en immobilier d’entreprise, implantés localement avec plus de 20 agences sur tout le territoire.Depuis 2009, notre proximité, notre ét ...
En savoir plus

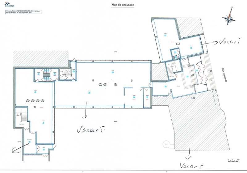
1 767 m² divisible dès 144 m²
HT HC
Location bureau - 1767 m²
Boulogne-Billancourt (92100)
Dernière mise à jour : Il y a 13 jours
ACCES QUAI DE SEINE/ LOYER ATTRACTIF
Dans un immeuble tertiaire récent situé à proximité des Quais de Seine et du Pont de Billancourt, IMMPROVE vous propose des surfaces de bureaux à la location. Locaux rationnels offrant de nombreuses possibilités d'aménagement . Possibilité d'aménager un coin cuisine. Parkings disponibles.
Impôt Foncier : 23 €/m²/an HT
Régime Fiscal : T.V.A. (20%)
Dépôt de garantie : 3 mois de loyer HT HC
Honoraires : 15% HT du loyer annuel HT/HC
Taxe Bureau : 25,77 €/m²/an
Information sur le Bail :
. Taxe Ordures Ménagères : 5 euros/m²/an
Prestations :
Accessibilité:
Bus Bus 389
Metro Billancourt (9)
Metro Issy Ville (C)
Les informations sur les risques auxquels ce bien est exposé sont disponibles sur le site Géorisques : www.georisques.gouv.fr
Dans un immeuble tertiaire récent situé à proximité des Quais de Seine et du Pont de Billancourt, IMMPROVE vous propose des surfaces de bureaux à la location. Locaux rationnels offrant de nombreuses possibilités d'aménagement . Possibilité d'aménager un coin cuisine. Parkings disponibles.
| Étage | Type | Surfaces | Dispo | Loyer | Charges | Type de bailRév. annuelle |
|---|---|---|---|---|---|---|
| RDC | Bureaux | 158 | Immédiate | 190 m²/an HT HC | 42 m²/an HT | Bail Dérogatoireselon l'indice des loyers des activités tertiaires (ILAT) |
| R+1 | Bureaux | 160 | Immédiate | 150 m²/an HT HC | 42 m²/an HT | Bail Dérogatoireselon l'indice des loyers des activités tertiaires (ILAT) |
| R+3 | Bureaux | 154 | Immédiate | 150 m²/an HT HC | 42 m²/an HT | Bail Dérogatoireselon l'indice des loyers des activités tertiaires (ILAT) |
| RDC | Bureaux | 273 | Immédiate | 190 m²/an HT HC | 42 m²/an HT | Bail Dérogatoireselon l'indice des loyers des activités tertiaires (ILAT) |
| RDC | Bureaux | 144 | Immédiate | 100 m²/an HT HC | 42 m²/an HT | Bail Dérogatoireselon l'indice des loyers des activités tertiaires (ILAT) |
| R+1 | Bureaux | 293 | Immédiate | 150 m²/an HT HC | 42 m²/an HT | Bail Dérogatoireselon l'indice des loyers des activités tertiaires (ILAT) |
| R+1 | Bureaux | 189 | Immédiate | 100 m²/an HT HC | 42 m²/an HT | Bail Dérogatoireselon l'indice des loyers des activités tertiaires (ILAT) |
| R+3 | Bureaux | 396 | Immédiate | 150 m²/an HT HC | 42 m²/an HT | Bail Dérogatoireselon l'indice des loyers des activités tertiaires (ILAT) |
| Parkings | Immédiate | 1200 place/an HT HC | Bail Dérogatoireselon l'indice des loyers des activités tertiaires (ILAT) | |||
| Parkings | Immédiate | 1200 place/an HT HC | Bail Dérogatoireselon l'indice des loyers des activités tertiaires (ILAT) |
Impôt Foncier : 23 €/m²/an HT
Régime Fiscal : T.V.A. (20%)
Dépôt de garantie : 3 mois de loyer HT HC
Honoraires : 15% HT du loyer annuel HT/HC
Taxe Bureau : 25,77 €/m²/an
Information sur le Bail :
. Taxe Ordures Ménagères : 5 euros/m²/an
Prestations :
- Ascenseur
- Accès sécurisé par badge
- Visiophone
- Fibre optique
- Plateaux fonctionnels permettant de travailler en espace ouvert ou en bureaux cloisonnés
- Climatisation autonome
- Type chauffage : Individuel
- Contrôle d'accès
- 2 Ascenseurs
- Surface RDC : 575 m²
Accessibilité:
Bus Bus 389
Metro Billancourt (9)
Metro Issy Ville (C)
Les informations sur les risques auxquels ce bien est exposé sont disponibles sur le site Géorisques : www.georisques.gouv.fr
Voir plus
Afficher les consommations énergétiques
Localisation et transport aux alentours
Favoris
Exporter
Appeler
Contacter
Signaler cette annonce
