Conseil en immobilier d'entreprise, Cushman & Wakefield est un acteur incontournable au rayonnement international. Cushman & Wakefield offre des solutions dans toutes les étapes que comporte un p ...
En savoir plus

49 m²
Bureau à vendre - 49 m²
Levallois-Perret (92300)
Dernière mise à jour : Il y a 4 jours
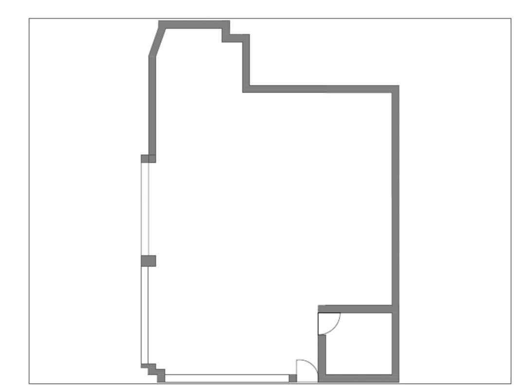
À Levallois-Perret, Cushman & Wakefield vous propose 49 m² de bureaux à vendre, situés en rez-de-chaussée d'un immeuble mixte avec gardien. Cette surface lumineuse, récemment rénovée, bénéficie d'une belle hauteur sous plafond, d'une double exposition et d'une entrée indépendante.
Elle offre une grande flexibilité d'aménagement avec peu de contraintes porteuses, un open space, une cuisine, des sanitaires privatifs et un chauffage électrique individuel.
Le bien est parfaitement desservi par les transports : métro Pont de Levallois-Bécon (ligne 3), gare de Clichy-Levallois, plusieurs lignes de bus (94, 165, 167, 174, 238, 274, 275) et accès rapide au périphérique.
Ces bureaux à vendre représentent une opportunité rare dans un quartier dynamique, mêlant vie de quartier, commerces, services et accessibilité optimale.
Impôt Foncier : 17,2 €//m²/an
Régime Fiscal : Droits d'enregistrement
Honoraires : 5 % HT du prix de vente HD à la charge de l'acquéreur
Prestations :
Accessibilité:
Métro Pont de Levallois - Bécon (ligne 3)
Bus Lignes 94-165-167-174-238-274-275-TUC
Accès routier Quais de Seine
Les informations sur les risques auxquels ce bien est exposé sont disponibles sur le site Géorisques : www.georisques.gouv.fr
Elle offre une grande flexibilité d'aménagement avec peu de contraintes porteuses, un open space, une cuisine, des sanitaires privatifs et un chauffage électrique individuel.
Le bien est parfaitement desservi par les transports : métro Pont de Levallois-Bécon (ligne 3), gare de Clichy-Levallois, plusieurs lignes de bus (94, 165, 167, 174, 238, 274, 275) et accès rapide au périphérique.
Ces bureaux à vendre représentent une opportunité rare dans un quartier dynamique, mêlant vie de quartier, commerces, services et accessibilité optimale.
| Étage | Type | Surfaces | Dispo | Prix(m²) | Charges | Honoraires | Fiscal |
|---|---|---|---|---|---|---|---|
| RdC | Bureaux | 49 | 8979,59 /m² HD.HT | 39 | 5 % HT du prix de vente HD à la charge de l'acquéreur | Droits d'enregistrement |
Impôt Foncier : 17,2 €//m²/an
Régime Fiscal : Droits d'enregistrement
Honoraires : 5 % HT du prix de vente HD à la charge de l'acquéreur
Prestations :
- Immeuble mixte
- Gardien
- Fibre optique
- Surface offrant une rénovation de qualité, une belle hauteur sous plafond et une double exposition rendant la surface très lumineuse
- Entrée indépendante
- Flexibilité d'aménagement
- Peu de contrainte porteuse
- Open space
- Cuisine
- Sanitaire privatif
- Plinthes périphériques
- Chauffage électrique individuel
- Surface RDC : 49 m²
Accessibilité:
Métro Pont de Levallois - Bécon (ligne 3)
Bus Lignes 94-165-167-174-238-274-275-TUC
Accès routier Quais de Seine
Les informations sur les risques auxquels ce bien est exposé sont disponibles sur le site Géorisques : www.georisques.gouv.fr
Voir plus
Afficher les consommations énergétiques
Localisation et transport aux alentours
Favoris
Exporter
Appeler
Contacter
Signaler cette annonce










