Conseil en immobilier d'entreprise, Cushman & Wakefield est un acteur incontournable au rayonnement international. Cushman & Wakefield offre des solutions dans toutes les étapes que comporte un p ...
En savoir plus



1 039 m²
Activité/Entrepôt à vendre - 1039 m²
Saint-Symphorien-d'Ozon (69360)
Dernière mise à jour : Il y a 2 jours
A VENDRE BATIMENT D'ACTIVITE INDEPENDANT SUR SON TERRAIN.
Cushaman & Wakefield vous propose un bâtiment d'activité à vendre sur la commune de Saint Symphorien d'Ozon.
Découvrez ce bâtiment industriel exceptionnellement bien situé à Saint-Symphorien-d'Ozon (69360).
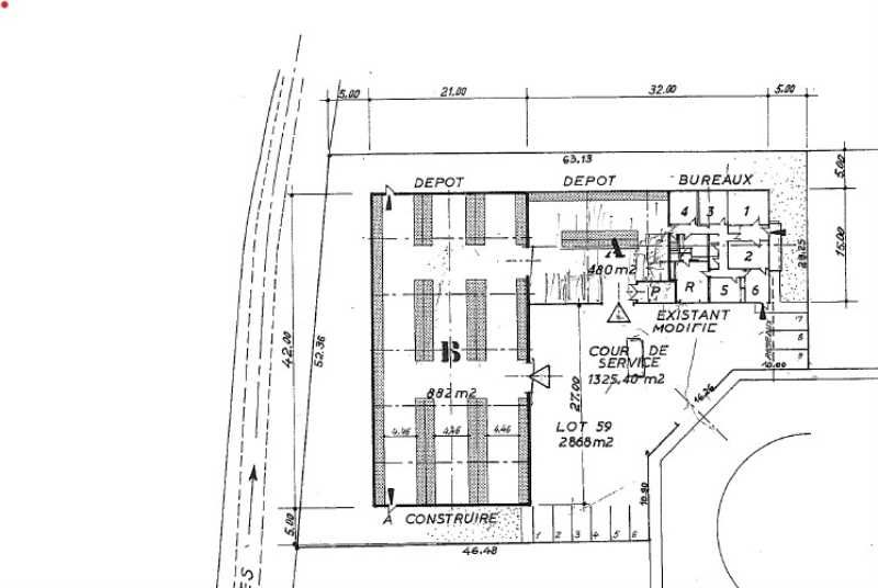
Ce bâtiment indépendant d'une surface totale de 1 032 m² est implanté sur un terrain de 3 111 m², offrant un espace idéal pour vos activités industrielles.
Ce bâtiment non divisible dispose d'une surface totale de 1 032 m². Il est indépendant et situé sur un site clos et sécurisé, avec une cour camion pour faciliter les opérations logistiques. Il possède deux accès plain-pied, une dalle industrielle béton. La hauteur sous poutre de 6,5 m et la hauteur sous ferme de 6,7 m.
La partie bureau est composée de six bureaux cloisonnés, une salle de réunion pour vos rencontres professionnelles, ainsi que des vestiaires, douches et sanitaires pour le confort de vos employés.
La zone industrielle de Saint-Symphorien-d'Ozon, notamment le parc d'activités du Pontet, s'étend sur 29 hectares et abrite environ 80 entreprises, générant plus de 1 000 emplois. Cette zone est un véritable pôle économique regroupant diverses activités telles que l'industrie, l'énergie, l'environnement, le BTP, le transport, la logistique et le commerce de gros12.
Le parc d'activités bénéficie d'une excellente desserte routière grâce à la proximité immédiate de l'A46, facilitant ainsi les déplacements et les échanges commerciaux. De plus, la présence de grandes entreprises et de PME dynamiques contribue à un environnement propice aux affaires et à la croissance économique. Et bénéficie de l'attractivité de la ZI LYON SUD EST (Corbas Vénissieux Saint Priest).
En termes d'accès et de proximité, ce bâtiment est idéalement situé. La gare TGV/TER Lyon Part Dieu est à 27 minutes, la gare TGV Lyon Saint Exupéry à 35 minutes, et l'aéroport Lyon Saint Exupéry également à 35 minutes.
Ce bâtiment industriel est idéalement situé pour optimiser vos opérations grâce à ses accès routiers et autoroutiers stratégiques. Ne manquez pas cette opportunité unique d'acquérir un bâtiment industriel de qualité dans une zone dynamique et facilement accessible.
Impôt Foncier : 7878 €//an
Régime Fiscal : Droits d'enregistrement
Honoraires : 5 % HT du prix de vente HD à la charge de l'acquéreur
Prestations :
Accessibilité:
SNCF Gare TGV / TER Lyon Part Dieu à 27 min
SNCF Gare TGV Lyon Saint Exupéry à 35 min
Accès routier D149 à proximité
Accès routier A46 à proximité
Aéroport Aéroport Lyon Saint Exupéry à 35 min
Les informations sur les risques auxquels ce bien est exposé sont disponibles sur le site Géorisques : www.georisques.gouv.fr
Cushaman & Wakefield vous propose un bâtiment d'activité à vendre sur la commune de Saint Symphorien d'Ozon.
Découvrez ce bâtiment industriel exceptionnellement bien situé à Saint-Symphorien-d'Ozon (69360).
Ce bâtiment indépendant d'une surface totale de 1 032 m² est implanté sur un terrain de 3 111 m², offrant un espace idéal pour vos activités industrielles.
Ce bâtiment non divisible dispose d'une surface totale de 1 032 m². Il est indépendant et situé sur un site clos et sécurisé, avec une cour camion pour faciliter les opérations logistiques. Il possède deux accès plain-pied, une dalle industrielle béton. La hauteur sous poutre de 6,5 m et la hauteur sous ferme de 6,7 m.
La partie bureau est composée de six bureaux cloisonnés, une salle de réunion pour vos rencontres professionnelles, ainsi que des vestiaires, douches et sanitaires pour le confort de vos employés.
La zone industrielle de Saint-Symphorien-d'Ozon, notamment le parc d'activités du Pontet, s'étend sur 29 hectares et abrite environ 80 entreprises, générant plus de 1 000 emplois. Cette zone est un véritable pôle économique regroupant diverses activités telles que l'industrie, l'énergie, l'environnement, le BTP, le transport, la logistique et le commerce de gros12.
Le parc d'activités bénéficie d'une excellente desserte routière grâce à la proximité immédiate de l'A46, facilitant ainsi les déplacements et les échanges commerciaux. De plus, la présence de grandes entreprises et de PME dynamiques contribue à un environnement propice aux affaires et à la croissance économique. Et bénéficie de l'attractivité de la ZI LYON SUD EST (Corbas Vénissieux Saint Priest).
En termes d'accès et de proximité, ce bâtiment est idéalement situé. La gare TGV/TER Lyon Part Dieu est à 27 minutes, la gare TGV Lyon Saint Exupéry à 35 minutes, et l'aéroport Lyon Saint Exupéry également à 35 minutes.
Ce bâtiment industriel est idéalement situé pour optimiser vos opérations grâce à ses accès routiers et autoroutiers stratégiques. Ne manquez pas cette opportunité unique d'acquérir un bâtiment industriel de qualité dans une zone dynamique et facilement accessible.
| Étage | Type | Surfaces | Dispo | Prix(m²) | Charges | Honoraires | Fiscal |
|---|---|---|---|---|---|---|---|
| Activités | 872 | n.c. | n.c. | 5 % HT du prix de vente HD à la charge de l'acquéreur | Droits d'enregistrement | ||
| Bureaux | 167 | n.c. | n.c. | 5 % HT du prix de vente HD à la charge de l'acquéreur | Droits d'enregistrement | ||
| Total Cellule | Activités | 1039 | 1251,2 /m² HD.HT | n.c. | 5 % HT du prix de vente HD à la charge de l'acquéreur | Droits d'enregistrement |
Impôt Foncier : 7878 €//an
Régime Fiscal : Droits d'enregistrement
Honoraires : 5 % HT du prix de vente HD à la charge de l'acquéreur
Prestations :
- Bâtiment indépendant
- Site clos et sécurisé
- Cour camion
- Activité :
- 2 accès plain-pied
- Dalle industrielle béton
- Bardage double peau
- Hauteur sous poutre 6.5 m
- Hauteur sous ferme 6.7 m
- Bureaux :
- 6 bureaux cloisonnés
- 1 salle de réunion
- Vestiaires, douches et sanitaires
- Immeuble indépendant
- Surface RDC : 0 m²
- Surface terrain : 3111
Accessibilité:
SNCF Gare TGV / TER Lyon Part Dieu à 27 min
SNCF Gare TGV Lyon Saint Exupéry à 35 min
Accès routier D149 à proximité
Accès routier A46 à proximité
Aéroport Aéroport Lyon Saint Exupéry à 35 min
Les informations sur les risques auxquels ce bien est exposé sont disponibles sur le site Géorisques : www.georisques.gouv.fr
Voir plus
Afficher les consommations énergétiques
Localisation et transport aux alentours
Favoris
Exporter
Appeler
Contacter
Signaler cette annonce



