Depuis 2003, KEOPS Toulouse accompagne les entreprises dans leurs projets immobiliers sur toute l’aire urbaine toulousaine.Notre équipe de professionnels passionnés met à votre service sa connaissa ...
En savoir plus

1 203 m²
Activité/Entrepôt à vendre - 1203 m²
Auterive (31190)
Dernière mise à jour : Il y a 2 jours
Idéal investisseur, bâtiment d'activités loué, à vendre, situé au sud de Toulouse
Impôt Foncier : 15534 €/Euros / an
Régime Fiscal : Droit d'enregistrement
Dépôt de garantie : 3 mois de loyer HT HC
Honoraires : 3,5 % HT du prix à la charge du vendeur
Prestations :
Accessibilité:
Accès : par route d'Espagne Par A64
Les informations sur les risques auxquels ce bien est exposé sont disponibles sur le site Géorisques : www.georisques.gouv.fr
| Étage | Type | Surfaces | Dispo | Prix(m²) | Charges | Honoraires | Fiscal |
|---|---|---|---|---|---|---|---|
| Activités | 1203 | Immédiate | n.c. | n.c. | 3,5 % HT du prix à la charge du vendeur | Droit d'enregistrement |
Impôt Foncier : 15534 €/Euros / an
Régime Fiscal : Droit d'enregistrement
Dépôt de garantie : 3 mois de loyer HT HC
Honoraires : 3,5 % HT du prix à la charge du vendeur
Prestations :
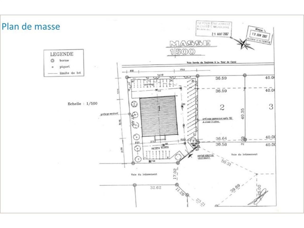
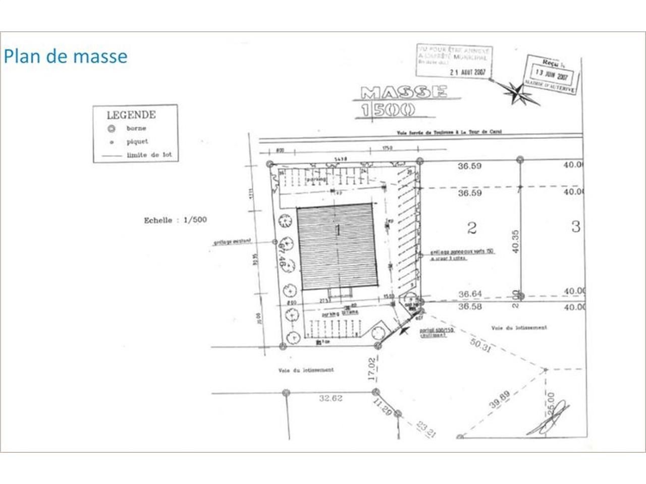
- Sur un terrain de 3 432 m², bâtiment d'activités d'une surface de 1 203 m²
- Une partie bureaux de 900 m² environ Bureaux climatisés et câblés Salle de réunion, réfectoire, vestiaires, sanitaires Une partie dépôt de 300 m² environ avec porte sectionnelle électrique, dalle béton quartz
- Bâtiment type structure métallique, bardage double peau Construction de 2008/2011
- 36 places de parkings
Accessibilité:
Accès : par route d'Espagne Par A64
Les informations sur les risques auxquels ce bien est exposé sont disponibles sur le site Géorisques : www.georisques.gouv.fr
Voir plus
Afficher les consommations énergétiques
Localisation et transport aux alentours
Favoris
Exporter
Appeler
Contacter
Signaler cette annonce

