Nous sommes Immprove, une grande équipe de plus de 200 experts en immobilier d’entreprise, implantés localement avec plus de 20 agences sur tout le territoire.Depuis 2009, notre proximité, notre ét ...
En savoir plus

1 466 m² divisible dès 714 m²
ACTIPARC DE SEILLON - Activité/Entrepôt à vendre - 1466 m²
Péronnas (01960)
Dernière mise à jour : Il y a 2 mois
Parc d'activités neuf
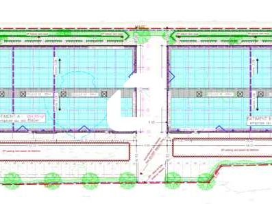
Immeuble ACTIPARC DE SEILLON
Situé stratégiquement entre Bourg-en-Bresse et la sortie n°7 de l'A40, à Bourg Sud, avec une visibilité exceptionnelle sur la RN75, IMMPROVE vous présente une opportunité rare d'acquisition ou de location d'un parc d'activités neuf.
Érigé sur un vaste terrain de 6 277 m², ce complexe se compose de deux bâtiments. Il reste uniquement deux lots sur le bâtiment A totalisant 1 466 m², divisibles à partir de 714 m².
Régime Fiscal : Droits d'enregistrement
Dépôt de garantie : 3 mois de loyer HT HC
Honoraires : inclus dans le prix de vente
Prestations :
Accessibilité:
Route N°7 Bourg-Sud à 5 min
Les informations sur les risques auxquels ce bien est exposé sont disponibles sur le site Géorisques : www.georisques.gouv.fr
Immeuble ACTIPARC DE SEILLON
Situé stratégiquement entre Bourg-en-Bresse et la sortie n°7 de l'A40, à Bourg Sud, avec une visibilité exceptionnelle sur la RN75, IMMPROVE vous présente une opportunité rare d'acquisition ou de location d'un parc d'activités neuf.
Érigé sur un vaste terrain de 6 277 m², ce complexe se compose de deux bâtiments. Il reste uniquement deux lots sur le bâtiment A totalisant 1 466 m², divisibles à partir de 714 m².
| Étage | Type | Surfaces | Dispo | Prix(m²) | Charges | Honoraires | Fiscal |
|---|---|---|---|---|---|---|---|
| 1 | Bureaux | 152 | 1er trimestre 2026 | n.c. | n.c. | inclus dans le prix de vente | Droits d'enregistrement |
| RDC | Activités | 600 | 1er trimestre 2026 | n.c. | n.c. | inclus dans le prix de vente | Droits d'enregistrement |
| Total Cellule A 1 | Activités | 752 | 1er trimestre 2026 | 1376,33 m² HD | n.c. | inclus dans le prix de vente | Droits d'enregistrement |
| 1 | Bureaux | 114 | 1er trimestre 2026 | n.c. | n.c. | inclus dans le prix de vente | Droits d'enregistrement |
| RDC | Activités | 600 | 1er trimestre 2026 | n.c. | n.c. | inclus dans le prix de vente | Droits d'enregistrement |
| Total Cellule A2 | Activités | 714 | 1er trimestre 2026 | 1337,54 m² HD | n.c. | inclus dans le prix de vente | Droits d'enregistrement |
Régime Fiscal : Droits d'enregistrement
Dépôt de garantie : 3 mois de loyer HT HC
Honoraires : inclus dans le prix de vente
Prestations :
- Disponibilité 2e semestre 2024
- Stationnement pré-équipé IRVE
- Toiture préconçue centrale photovoltaïque
- Proximité autoroute et accès poids lourds
- Hauteur libre : 6 mètres
- Portes vitrées pour l'accès piéton
- Livraison : locaux bruts / fluides en attente
- Surface RDC : 1200 m²
- Surface terrain : 6277
Accessibilité:
Route N°7 Bourg-Sud à 5 min
Les informations sur les risques auxquels ce bien est exposé sont disponibles sur le site Géorisques : www.georisques.gouv.fr
Voir plus
Afficher les consommations énergétiques
Localisation et transport aux alentours
Favoris
Exporter
Appeler
Contacter
Signaler cette annonce








