Size Real Estate est une société de conseil en immobilier d’entreprise. Nous vous accompagnons dans tous vos projets immobiliers à Paris ou en première couronne. De la recherche de bureaux à la loc ...
En savoir plus

616 m² divisible dès 44 m²
HT HC
Location bureau - 616 m²
Paris 9 (75009)
Dernière mise à jour : Il y a 1 mois
Bureaux à louer - Grands Boulevards
En plein quartier des Grands Boulevards, SIZE Real Estate vous propose plusieurs surfaces de bureaux à la location au sein d'un immeuble haussmannien de bon standing.
Les lots, allant d'une superficie de 44,3 m² à plus de 160 m² ont été rénovés.
Ils sont lumineux, traversants, organisés en espaces ouverts et cloisonnés.
Le 4ème étage bénéficie d'un large balcon filant.
Disponible immédiatement.
Construction : Immeuble de bon standing
Date (dernière mise à jour) : 2025-09-19
Bail : Commercial 3 6 9
Honoraires / Location: À la charge du preneur
Commentaires: PPAT :
- 18EUR/m²/an
Prestations :
- Immeuble de bon standing
-
- Gardien
-
- État des locaux : Rénové
- Bureaux à louer au sein d'un immeuble haussmannien
-
- 1er étage rénové il y a peu de temps.
- Disponible immédiatement.
- Bail commercial.
- La surface est meublée et équipée pour environ 25 à 30 postes et bénéficie de 3 salles de réunion + une phonebox.
-
- Etages 3 et 4 :
- Plateaux lumineux, traversants et rénovés
- Mixte open space et espaces cloisonnés
- Aménagement flexible
- Possibilité de décloisonner en partie
- Balcon filant au 4ème étage
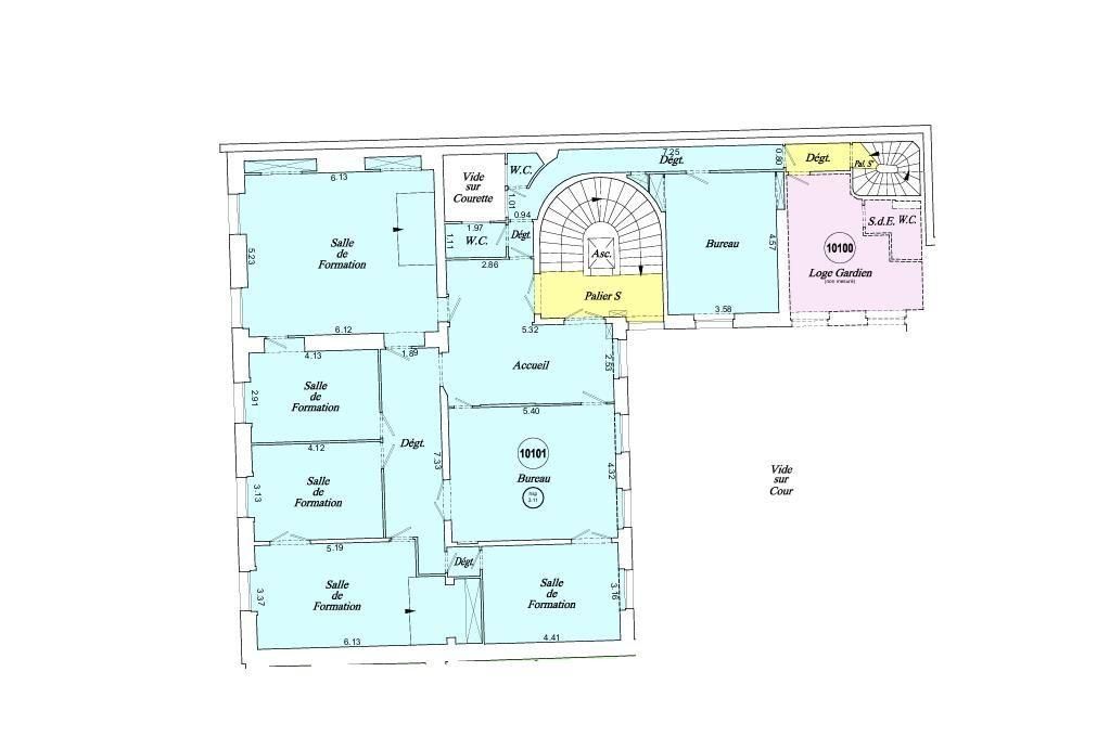
Tableau de Surfaces :
Conditions juridiques et financères :
Charges : 3804.088
Accessibilité :
Métro : Grands Boulevards et Bonne Nouvelle (8 et 9), Sentier (3), Cadet (7)
En plein quartier des Grands Boulevards, SIZE Real Estate vous propose plusieurs surfaces de bureaux à la location au sein d'un immeuble haussmannien de bon standing.
Les lots, allant d'une superficie de 44,3 m² à plus de 160 m² ont été rénovés.
Ils sont lumineux, traversants, organisés en espaces ouverts et cloisonnés.
Le 4ème étage bénéficie d'un large balcon filant.
Disponible immédiatement.
Construction : Immeuble de bon standing
Date (dernière mise à jour) : 2025-09-19
Bail : Commercial 3 6 9
Honoraires / Location: À la charge du preneur
Commentaires: PPAT :
- 18EUR/m²/an
Prestations :
- Immeuble de bon standing
-
- Gardien
-
- État des locaux : Rénové
- Bureaux à louer au sein d'un immeuble haussmannien
-
- 1er étage rénové il y a peu de temps.
- Disponible immédiatement.
- Bail commercial.
- La surface est meublée et équipée pour environ 25 à 30 postes et bénéficie de 3 salles de réunion + une phonebox.
-
- Etages 3 et 4 :
- Plateaux lumineux, traversants et rénovés
- Mixte open space et espaces cloisonnés
- Aménagement flexible
- Possibilité de décloisonner en partie
- Balcon filant au 4ème étage
Tableau de Surfaces :
| Etage | Type de bien | Surface | Dispo | |
| 4 | Bureaux | 44 m² | Immédiate | |
| 3 | Bureaux | 170 m² | Immédiate | |
| 3 | Bureaux | 46 m² | Immédiate | |
| 4 | Bureaux | 156 m² | Immédiate | |
| 1 | Bureaux | 200 m² | Immédiate |
Conditions juridiques et financères :
Charges : 3804.088
Accessibilité :
Métro : Grands Boulevards et Bonne Nouvelle (8 et 9), Sentier (3), Cadet (7)
Voir plus
Afficher les consommations énergétiques
Localisation et transport aux alentours
Favoris
Exporter
Appeler
Contacter
Signaler cette annonce
